• Sledovat cenu
  •  

Zasílání upozornění emailem:

Rodinný dům, 118 m2 - Pohanková, Zlín

Cena: 11 245 000 Kč
Stav:Volný
118 m2, cihlová, parcela 769 m2
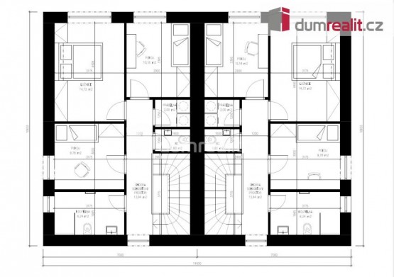
Popis: Cena včetně výstavby domu na klíč, pozemku a DPH. Dumrealit. cz Vám nabízí výstavbu patrového domu 4+kk o užitné ploše 118 m² v provedení na klíč s pozemkem v Kostelci u Zlína.... Součástí ceny bude dům, pozemek č. 6 o velikosti 769 m², příprava pozemku pro stavbu, připojení domu na inženýrské sítě, přípojné místo NN, retenční nádrž a parkovací místo o velikosti 36m². Dále zde bude provedena příprava pro následné připojení fotovoltaických panelů. Dům bude realizován jako dvojdomek. Zastavěná plocha jednodomku je 74 m² s užitnou plochou 118m². Prodej pozemků 5 a 6 je možný s tím, že cena domu by byla stanovena v okamžiku možné realizace. Výstavba domu by tak mohla být zahájena cca za 2 roky. Více podrobností u makléře. Prodej pozemků bez výstavby není možný. Pozemky jsou již rozděleny na 6 samostatných pozemků a můžete si tak pozemek rezervovat a kupovat, zároveň nechat připravit smlouvu o dílo s položkovým rozpočtem. V projektu jsou možné variabilní úpravy dispozice (posuny příček). Patrový dům je ideální pro 5 člennou rodinu s nízkými provozními náklady. Uvedená cena je za pozemek, kompletní stavbu domu v provedení na klíč, projektové dokumentace, vyřízení stavebního povolení, základové desky až po kolaudaci. V uvedené ceně můžete počítat také s finálními povrchovými úpravami exteriéru i interiéru, a to včetně elektroinstalací, sanitárního vybavení s bateriemi, interiérovými dveřmi včetně obložek a vytápění bude řešeno teplovodním podlahovým topením v kombinaci tepelného čerpadla se 180L zásobníkem na teplou vodu. Dle dohody změníme systém vytápění nebo vystavíme komín pro krbové kamna nebo pro využití krbové vložky. Kryté garážové stání spojené s domem nebo venkovní krytou či nekrytou terasu za příplatek. Pro náročnější klienty máme nabídku nadstandardního vybavení chytré domácnosti, klimatizaci, externí žaluzie, rolety, rekuperaci nebo fotovoltaiku. Doba výstavby cca 12 - 14 měsíců od vydání stavebního povolení a stavbu zahájíme do 10 dnů od jeho vydání. Smlouvy o dílo zašleme na vyžádání včetně položkového rozpočtu. 4. září 2024, došlo k podpisu smlouvy o přeložce distribuční soustavy se společností EG. D. a budou zahájeny následné kroky pro změnu vedení a umístění vysokého napětí. Pro pozemky 1 až 4 neplatí žádné omezení. Doporučuji prohlídku pozemků a případně našich staveb. Více a cena u makléře. Ev. číslo: 653511. Energetický štítek: A (49 kWh/m2/rok).
  • Vložení inzerátu:
    4.2.2026
  • Kód:
    4097651
  • Typ nemovitosti:
    Rodinný dům
  • Typ budovy:
    Cihlová
  • Zastavěná plocha:
    74 m2
  • Podlahová plocha:
    118 m2
  • Plocha parcely:
    769 m2
  • Stav objektu:
    Ve výstavbě
  • Umístění objektu:
    Klidná část
  • Energetická náročnost:
    A - Mimoˇrádne úsporná
  • Ukazatel náročnosti:
    49 kWh/m2
  • Nabídky v okolí:
  • Informace o obci:
    Obec Zlín má 75469 obyvatel, z toho 51734 v produktivním věku.
    V obci se nachází pošta.
    V obci se nachází škola, popř. školka.
    V obci se nachází zdravotní zařízení.
    V obci je rozvod kanalizace.
    V obci je rozvod městské vody.
    V obci je rozvod plynu.
Lokalita: Pohanková , Zlín, okres Zlín, Česká republika Pohanková, Zlín

Kontakt

Petr Sedlařík


Podobné nabídky v okolí


Volná pracovní místa ExpertPrace.cz
  • Objednání prohlídky a více informací
  •  
  • Poslat na e-mail
  •  

Zasílání odkazu na realitu emailem: