• Sledovat cenu
  •  

Zasílání upozornění emailem:

Rodinný dům, 115 m2 - Bořenovice , okr. Kroměříž (již není v nabídce)

Cena: 6 845 000 Kč
Stav:archiv
115 m2, cihlová, parcela 1110 m2
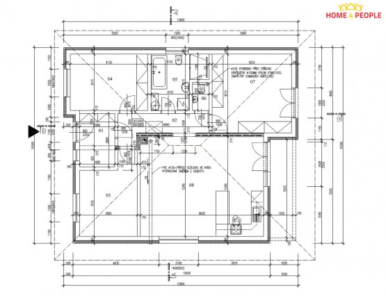
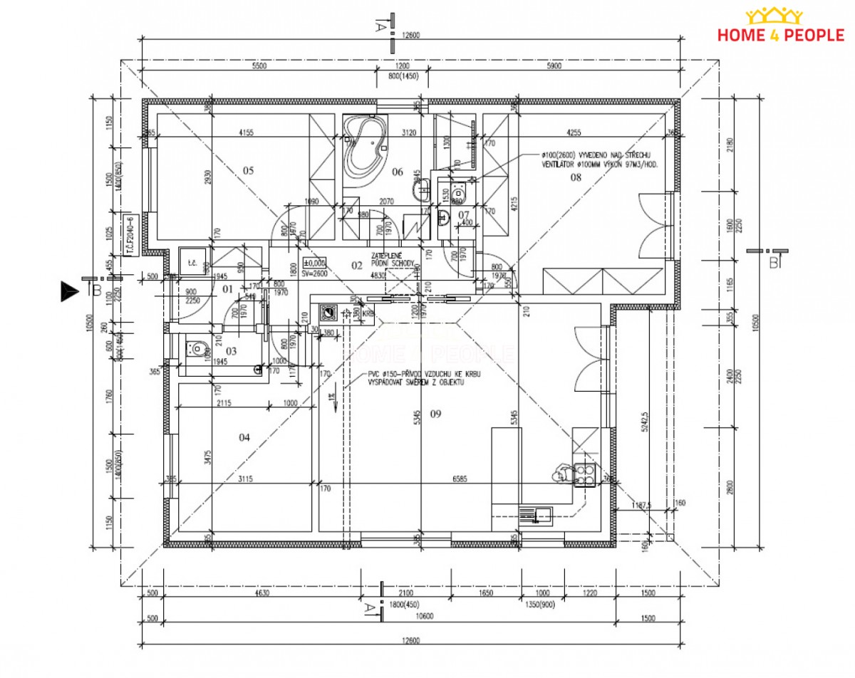
Popis: Cena včetně domu na klíč, domácí ČOV (osobní vlastnictví), DPH a pozemku!. Zprostředkujeme Vám nabídku výstavby domu typu Markéta 4+kk, 115m² v provedení na klíč v obci Bořen...ovice u Holešova a pozemku 1110m². Projekt ekonomického domu Markéta o dispozici 4+kk zastřešuje aktuální potřeby dnešní doby se zastavěnou plochou 115m² a užitnou plochou 94m². Jedná se o kvalitní zděnou stavbu z materiálu Porfix 300 a díky minimalizaci hluchých prostorů a přesunuté střešní konstrukci zároveň cenově nenáročný rodinný dům. Svojí jednoduchou konstrukcí je předurčený pro rychlou a nekomplikovanou výstavbu. Všechny důležité rozvody jsou koncentrované na jednom místě, což snižuje instalační náklady a poruchovost. Optimální půdorys poskytuje výborný poměr mezi velikostí plochy obvodových stěn a vnitřního prostoru. Minimální plocha obvodových stěn takto šetří náklady nejen při výstavbě, ale i při vytápění domu. Ekonomický dům Markéta je navrhnutý tak, aby měsíční provozní náklady na tento dům byly přibližně třikrát nižší než u bytu podobné podlahové výměry. Prostředky ušetřené na provozu můžete použít například na splátky hypotéky, čímž se dům stává dostupný téměř pro každého. Uvedená cena obsahuje poz základovou desku, projekt, DPH a stavba bude provedena na klíč a předána k okamžitému užívání. Kolaudace je samozřejmostí. Těchto typů domů jsme v minulosti realizovali nespočet a tak máme spousty zajímavých dispozičních řešení. (Součástí ceny není kuchyňská linka a světla – dokážeme za zvýhodněných podmínek zajisti přes naše dodavatele). V uvedené ceně můžete počítat také s finálními povrchovými úpravami exteriéru i interiéru, a to včetně elektroinstalací, sanitárního vybavení s bateriemi, interiérovými dveřmi včetně obložek a vytápění bude řešeno teplovodním podlahovým topením v kombinaci tepelného čerpadla se 180L zásobníkem na teplou vodu. Dle dohody změníme systém vytápění nebo vystavíme komín pro krbové kamna nebo pro využití krbové vložky. Dále v uvedené ceně je také domácí čistírna vod a její napojení a zprovoznění. Kryté garážové stání spojené s domem nebo terasu za příplatek. Pro náročnější klienty máme nabídku nadstandardního vybavení chytré domácnosti, klimatizaci, externí žaluzie, rolety, rekuperaci nebo fotovoltaiku. Úprava dispozice nebo tvaru domu povolena. Délka výstavby od vydání stavebního povolení 12 - 13 měsíců. Nabízený pozemek o rozměrech 17, 5m široký a 64m dlouhý je v územním plánu určený pro výstavbu rodinného bydlení. Inženýrské sítě v dosahu, kromě plynu a splaškové kanalizace, ale toto je řešeno domácí čistírnou odpadních vod. Pozemek je mírně svažitý a jeho výhodou je možný přístup i ze zadní části pozemku, což může být a je výhodou. Jeho poloha je mezi domy a není součástí nabízených pozemku již nabízených pozemků v developerském území. Více u makléře a to včetně dohodnutí se na prohlídce. Také nabízíme možnost si projít hotový dům typ Markéta. Změna za jiný dům je povolena. Doporučuji Ev. číslo: 31656. Energetický štítek: A (48 kWh/m2/rok).
  • Vložení inzerátu:
    3.4.2025
  • Kód:
    3970048
  • Typ nemovitosti:
    Rodinný dům
  • Typ budovy:
    Cihlová
  • Zastavěná plocha:
    115 m2
  • Podlahová plocha:
    115 m2
  • Plocha parcely:
    1110 m2
  • Umístění objektu:
    Klidná část
  • Energetická náročnost:
    A - Mimoˇrádne úsporná
  • Ukazatel náročnosti:
    48 kWh/m2
  • Nabídky v okolí:
  • Informace o obci:
    Obec Bořenovice má 184 obyvatel, z toho 118 v produktivním věku.
    V obci je rozvod městské vody.
    V obci je rozvod plynu.

Podobné nabídky v okolí

Lokalita: Bořenovice , okres Kroměříž, Česká republika Bořenovice , okr. Kroměříž, Zlínský kraj