• Sledovat cenu
  •  

Zasílání upozornění emailem:

Rodinný dům, 113 m2 - Stehelčeves , okr. Kladno (již není v nabídce)

Cena: 10 990 000 Kč
Stav:archiv
113 m2, cihlová, parcela 410 m2
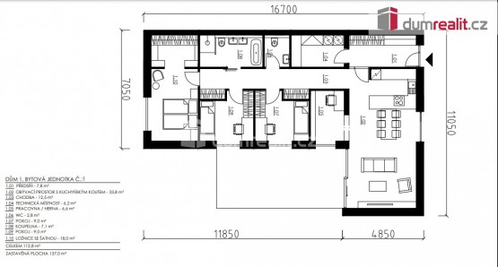
Popis: prodej novostavby pasivního rodinného domu i dispozici 5+kk, pozemkem o výměře 410 m², který se nachází se v obci Stehelčeves, nedaleko Prahy. Samotný dům disponuje užitnou ...plochou 113 m² plus terasa 30 m². Jedná se o velmi atypický řešené nízkoenergetické dvojdomy, ve vysokých standardech, kde se klade důraz především na soukromí obou polovin domů. Dispozice domu je řešena následovně: Přes zádveří je možné projít do technické místnosti, a dále pak přes dveře z mléčného skla, přímo do hlavní dominanty domu. Tím je bezpochyb prostorný obývací pokoj s kuchyňským koutem. Zde obvykle budete trávit nejvíce času, ať už sami, nebo i s Vašimi hosty. Tedy nemusíte návštěvu vodit přes celý dům, aby jste se dostali do obýváku. Odtud vede cesta přes prakticky řešenou chodbu do všech ostatních místností v domě. Tedy pracovny, 2 dětských pokojů a ložnice s vlastní šatnou. V neposlední řadě je tu koupelna s vanou i sprchovým koutem a sociální zařízení WC. A k dispozici je i další samostatné sociální zařízení WC.
Dům se jistě odlišuje od podobných projektů například:
- řízené větrání s rekuperací tepla – rekuperace Futura M od firmy Jablotron,
- aktivní chlazení interiéru CoolBreeze
- tepelné čerpadlo pro podlahové teplovodní vytápění Panasonic
- okna s izolačními trojskly Sulko, z obývacího pokoje bezprahový HS portál,
- dřevěné podlahy,
- stropy 2, 7m
- dveře se skrytými závěsy s výškou 2, 2 m od společnosti Sapeli,
- sanita značek Laufen, Grohe,
- vany z litého mramoru Polysal
- venkovní elektricky ovládané žaluzie, silikonová omyvatelná omítka, či terasa z bezúdržbového dřevoplastu.
Aktuálně probíhá finalizace terénních úprav. Dům bude k nastěhování 09/2023. V obci je veškerá občanská vybavenost, tj. Škola, školka, praktický lékař, Pošta atd v místě. Důležitá informace je, že v obci aktuálně probíhá výstavba moderního obchodního centra, kde bude mimo jiné BILLA, DM, Takko, McDonalds atd. (termín dokončení prosinec 2023). Pro více informací, kontaktujte makléře. Ev. číslo: 644145. Energetický štítek: A (50 kWh/m2/rok).
  • Vložení inzerátu:
    1.9.2023
  • Kód:
    3671601
  • Typ nemovitosti:
    Rodinný dům
  • Typ budovy:
    Cihlová
  • Zastavěná plocha:
    138 m2
  • Podlahová plocha:
    113 m2
  • Plocha parcely:
    410 m2
  • Terasa:
    Ano
  • Stav objektu:
    Novostavba
  • Energetická náročnost:
    A - Mimoˇrádne úsporná
  • Ukazatel náročnosti:
    50 kWh/m2
  • Nabídky v okolí:
  • Informace o obci:
    Obec Stehelčeves má 733 obyvatel, z toho 513 v produktivním věku.
    V obci se nachází pošta.
    V obci je rozvod kanalizace.
    V obci je rozvod městské vody.
    V obci je rozvod plynu.

Podobné nabídky v okolí

Lokalita: Stehelčeves , okres Kladno, Česká republika Stehelčeves , okr. Kladno, Středočeský kraj