• Sledovat cenu
  •  

Zasílání upozornění emailem:

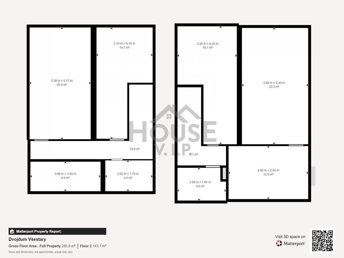
Rodinný dům, 111 m2 - Strančická, Všestary, okr. Praha-východ

Cena: 11 300 000 Kč
Stav:Volný
111 m2, cihlová, parcela 100 m2
Popis: K prodeji nabízíme dvoupodlažní bytovou jednotku 3+kk s užitnou plochou 111 m², která se nachází v novostavbě dvojdomu v centru obce Všestary u Říčan. Byt disponuje vlastní zah...radou (cca 100 m²) s terasou, zahradním domkem a parkovacím stáním pro 2 vozy s přípravou pro rychlonabíjení elektromobilu.

Jednotka má samostatný vchod a je kolaudována – připravena k okamžitému nastěhování.

Dispozice a vybavení:
- vzdušný obývací pokoj s kuchyňským koutem a vstupem na terasu.
- galerie v patře propojující obě podlaží.
- ložnice a multifunkční pokoj (pracovna/dětský pokoj).
- koupelna s moderní sanitou a walk - in sprchou.
- samostatné sociální zařízení WC s bidetovou sprškou.
- technická místnost, vstupní hala s dřevěným schodištěm.
- zahrada s retenční nádrží.

Technologie a standard:
- energeticky úsporný dům – PENB B.
- podlahové vytápění přes tepelné čerpadlo.
- trojskla, hliníková krytina střechy, keramické zdivo.
- příprava na fotovoltaiku, klimatizaci, možnost instalace krbové vložky.
- optický kabel a nadstandardní rozvody elektřiny a LAN.

Lokalita:
Byt se nachází v klidném prostředí v centru obce, s plnou občanskou vybaveností v pěší vzdálenosti. Vlakem jste v Praze během pár minut, cyklostezka vede přímo kolem domu.

️ Na prodej je také sousední pravá bytová jednotka se stejnými parametry – při koupi obou částí dvojdomu je možná dodatečná sleva.
  • Vložení inzerátu:
    3.11.2025
  • Kód:
    00988-1
  • K dispozici od:
    0.0.0
  • Typ nemovitosti:
    Rodinný dům
  • Typ budovy:
    Cihlová
  • Podlahová plocha:
    111 m2
  • Plocha parcely:
    100 m2
  • Stav objektu:
    Novostavba
  • Rok výstavby:
    2025
  • Rok kolaudace:
    2025
  • Energetická náročnost:
    B - Velmi úsporná
  • Podle vyhlášky:
    c. 78/2013 Sb.
  • Ukazatel náročnosti:
    75 kWh/m2
  • Nabídky v okolí:
  • Informace o obci:
    Obec Všestary má 683 obyvatel, z toho 449 v produktivním věku.
    V obci je rozvod městské vody.
    V obci je rozvod plynu.
Lokalita: Strančická , Všestary, okres Praha-východ, Česká republika Strančická, Všestary, okr. Praha-východ

Kontakt

Bc. Artur Kurlikovskyy



  • Objednání prohlídky a více informací
  •  
  • Poslat na e-mail
  •  

Zasílání odkazu na realitu emailem: