• Sledovat cenu
  •  

Zasílání upozornění emailem:

Rodinný dům, 108 m2 - Slévárenská, Kutná Hora, okr. Kutná hora (již není v nabídce)

Cena: 7 900 000 Kč
Stav:archiv
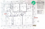
108 m2, cihlová, parcela 771 m2
Popis: Přízemní jednopodlažní bungalov 4+kk ve velice dobrém stavu (kolaudace 2017), kompletně zařízený pro dvě osoby. V roce 2023 instalována FVE na ohřev TUV.
Na zahradě podzemní ...nádrž na dešťovou vodu, objem 4 m3.
Vytápění elektrickým kotlem - teplovodní podlahové v celém domě s regulací v jednotlivých místnostech. Jsou také instalována krbová kamna na dřevo.
Veškeré nářadí na údržbu zahrady a domu (sekačky, okružní pila, křovinořezy, žebříky . . . ) a zásoba palivového dřeva na 2 roky jsou zahrnuty v ceně.
Dále jsou na zahradě dvě kůlny, terasa, pergola s posezením, gril, jezírko.
  • Vložení inzerátu:
    16.7.2024
  • Kód:
    RS312689
  • Typ nemovitosti:
    Rodinný dům
  • Typ budovy:
    Cihlová
  • Zastavěná plocha:
    144 m2
  • Podlahová plocha:
    108 m2
  • Plocha parcely:
    771 m2
  • Terasa:
    Ano
  • Stav objektu:
    Novostavba
  • Bezbariérový přístup:
    Ano
  • Energetická náročnost:
    B - Velmi úsporná
  • Nabídky v okolí:
  • Informace o obci:
    Obec Kutná Hora má 21295 obyvatel, z toho 15027 v produktivním věku.
    V obci se nachází pošta.
    V obci se nachází škola, popř. školka.
    V obci se nachází zdravotní zařízení.
    V obci je rozvod kanalizace.
    V obci je rozvod městské vody.
    V obci je rozvod plynu.

Podobné nabídky v okolí

Lokalita: Slévárenská , Kutná Hora, okres Kutná hora, Česká republika Slévárenská, Kutná Hora, okr. Kutná hora