• Sledovat cenu
  •  

Zasílání upozornění emailem:

Rodinný dům, 105 m2 - Žeravice , okr. Hodonín

Cena: 1 999 990 Kč
Stav:Volný
105 m2, parcela 573 m2
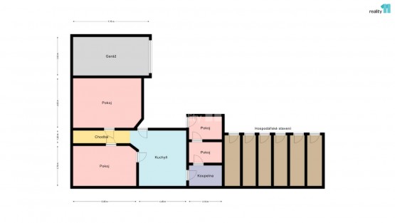
Popis: Nabízíme k prodeji starší přízemní rodinný dům v Žeravicích, který je připraven ke kompletní rekonstrukci. Dům se nachází v klidné obci s výbornou dostupností do Kyjova. Dispozice domu nabízí dva větší pokoje s okny do uli...ce, dva menší s okny do dvora, prostornou kuchyni, dále starší koupelnu též k rekonstrukci. Průjezdná vrata umožňují vjezd až do dvora s možností parkování v prostorném průjezdu. Na dům navazují hospodářská stavení - šest menších prostor k různému využití. Dále je zde kvelbený sklep s hliněnou podlahou pro uskladnění brambor, ovoce, zeleniny nebo vína. Celkem mají pozemky k domu výměru 573 m². Tento dům je zajímavou příležitostí pro ty, kteří touží po vlastním domě s menší zahrádkou. Doporučujeme Vám prohlídku. S financováním pomůžeme. . Ev. číslo: 27950. Energetický štítek: G
  • Vložení inzerátu:
    12.12.2025
  • Kód:
    4012420
  • Typ nemovitosti:
    Rodinný dům
  • Zastavěná plocha:
    247 m2
  • Podlahová plocha:
    105 m2
  • Plocha parcely:
    573 m2
  • Terasa:
    Ano
  • Sklep:
    Ano
  • Stav objektu:
    Před rekonstrukcí
  • Energetická náročnost:
    G - Mimořádne nehospodárná
  • Nabídky v okolí:
  • Informace o obci:
    Obec Žeravice má 1063 obyvatel, z toho 764 v produktivním věku.
    V obci se nachází pošta.
    V obci se nachází škola, popř. školka.
    V obci se nachází zdravotní zařízení.
    V obci je rozvod kanalizace.
    V obci je rozvod městské vody.
    V obci je rozvod plynu.
Lokalita: Žeravice , okres Hodonín, Česká republika Žeravice , okr. Hodonín, Jihomoravský kraj

Kontakt

Jiří Pospíšil


Podobné nabídky v okolí


Volná pracovní místa ExpertPrace.cz
  • Objednání prohlídky a více informací
  •  
  • Poslat na e-mail
  •  

Zasílání odkazu na realitu emailem: