• Sledovat cenu
  •  

Zasílání upozornění emailem:

Rodinný dům, 103 m2 - Svobodova, Karlovy Vary (již není v nabídce)

Cena: 5 480 000 Kč
Stav:archiv
103 m2, montovaná, parcela 492 m2
Popis: prodeji rodinný dům v Karlových Varech ve čtvrti Stará Role. Dům na pozemku o rozloze 492 m², má dispozici 4+1 a obytnou plochu 103 m² (+ technické podlaží).
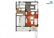
V prvním nadzemním pod...laží se nachází obývací pokoj, ložnice, koupelna, sociální zařízení WC, kuchyň a hala. Z ní je přístupné druhé nadzemní podlaží se dvěma pokoji a možností využít pochozí půdu nad celým domem. Vizuální plán naleznete v galerii. Celý dům je podsklepený, je zde garáž, spíž, prádelna, kotelna a sklad.
Dům je pečlivě udržovaný a částečně zrekonstruovaný. Stavba je zateplená, má plastová okna a nové rozvody vody. Vytápění je zajištěno tepelným čerpadlem značky Viessman Vitocal 200 D, které bylo instalováno v roce 2021. K dispozici je projektová dokumentace domu a nová revizní zpráva elektro a hromosvodu, dále pak kontakty na dodavatele zateplení, plastových oken, instalatéra a dodavatele tepelného čerpadla včetně servisu. Nově upravená je i zahrada se skleníkem, ovocnými stromy, okrasnými keři a květinami.
Okolí domu nabízí základní a mateřskou školu, poštu, nákupní centrum, polikliniku a zastávku městské hromadné dopravy. Přístup na dálnici je také pohodlný. S případným financováním Vám pomůže náš specialisty. pokud vás nabídka zaujala, neváhejte mě kontaktovat k domluvení prohlídky. Ev. číslo: 26355. Energetický štítek: D
  • Vložení inzerátu:
    24.8.2024
  • Kód:
    3844448
  • Typ nemovitosti:
    Rodinný dům
  • Typ budovy:
    Montovaná
  • Zastavěná plocha:
    84 m2
  • Podlahová plocha:
    103 m2
  • Plocha parcely:
    492 m2
  • Terasa:
    Ano
  • Sklep:
    Ano
  • Stav objektu:
    Velmi dobrý
  • Energetická náročnost:
    D - Méne úsporná
  • Nabídky v okolí:
  • Informace o obci:
    Obec Karlovy Vary má 51115 obyvatel, z toho 35848 v produktivním věku.
    V obci se nachází pošta.
    V obci se nachází škola, popř. školka.
    V obci se nachází zdravotní zařízení.
    V obci je rozvod kanalizace.
    V obci je rozvod městské vody.
    V obci je rozvod plynu.

Podobné nabídky v okolí

Lokalita: Svobodova , Karlovy Vary, okres Karlovy Vary, Česká republika Svobodova, Karlovy Vary