• Sledovat cenu
  •  

Zasílání upozornění emailem:

Rodinný dům, 102 m2 - Markvartice , Jablonné v Podještědí, okr. Liberec (již není v nabídce)

Cena: 7 163 000 Kč
Stav:archiv
102 m2, dřevostavba, parcela 911 m2
Popis: Cena včetně provize a právního servisu. . Ve výhradním zastoupení majitele si Vám dovoluji nabídnou ke koupi novostavbu RD (rodinný dům) ve fázi výstavby. Předpokládaný termín dokončení dřevostavby 03/24.
Uvedená cena 7 16...3 000, - Kč je složena z ceny pozemku o velikosti 911 m² a domu ve stupni na dokončení.

Vážný zájemce má jedinečnou možnost vstoupit do fáze dokončování tím, že si dle svého vkusu a finančních možností vybere obklady, dlažby, podlahové krytiny, zařizovací předměty, interiérové dveře, materiál pro zpevněné plochy a terasu, oplocení.

Druhou možností, když nemáte čas nebo chuť cokoliv řešit, je pohodlná varianta tzv. „na klíč“
Úroveň dokončení domu bude dle dohody.

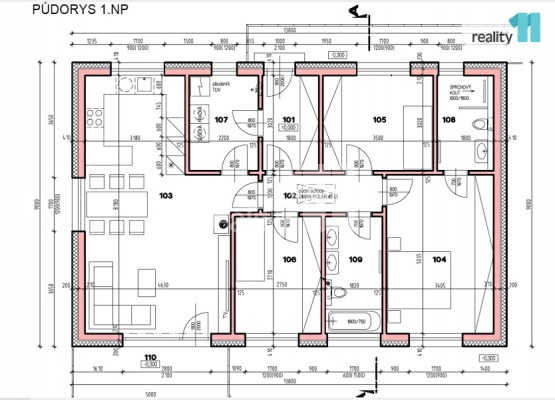
RD (rodinný dům) 4+kk je řešen jako jednopodlažní nepodsklepená stavba se sedlovou střechou o rozměrech 13, 8 x 9, 0 m, energetický štítek "A" - mimořádně úsporná stavba.
Pozemek má 911 m², zastavěná plocha 124 m² + 90 m² zpevněné plochy.
Dům je napojen na elektřinu, obecní vodovod a kanalizaci, dešťová voda je svedena do plastové jímky 3, 2 m3.
Vytápění je řešeno elektrickým podlahovým topením. Ohřev vody je v kombinaci topné spirály a fotovoltaického systému 3, 6 kWp.
Moderní způsob větrání zajišťuje rekuperační jednotka s rozvodem do všech obytných místností se zpětným ziskem tepla.

Fotografie zachycují současný stav a budou postupně aktualizovány.
K dispozici je technická zpráva a další dokumenty. Vážnému zájemci je ráda zašlu.
V případě zájmu, prosím, pište přes odpovědní formulář. Děkuji. Ev. číslo: 25665. Energetický štítek: A (62 kWh/m2/rok).
  • Vložení inzerátu:
    6.9.2023
  • Kód:
    3674112
  • Typ nemovitosti:
    Rodinný dům
  • Typ budovy:
    Dřevostavba
  • Zastavěná plocha:
    124 m2
  • Podlahová plocha:
    102 m2
  • Plocha parcely:
    911 m2
  • Terasa:
    Ano
  • Stav objektu:
    Ve výstavbě
  • Energetická náročnost:
    A - Mimoˇrádne úsporná
  • Ukazatel náročnosti:
    62 kWh/m2
  • Nabídky v okolí:

Podobné nabídky v okolí

Lokalita: Markvartice , Jablonné v Podještědí, okres Liberec, Česká republika Markvartice , Jablonné v Podještědí, okr. Liberec, Liberecký kraj