Rodinný dům, 100 m2 - Orlické Záhoří , okr. Rychnov nad Kněžnou (již není v nabídce)
            
            
                
        Cena:
                        2 750 000 Kč
        
              Stav:archiv
        
         
          
          
                100 m2, cihlová, parcela 1247 m2          
        
        Popis:
        
                                Podívejte se na VIDEOPROHLÍDKU:  youtube. com/watch?v=fAPRrMltN6M&feature=youtu. be
V případě Vašeho zájmu MŮŽEME ZAJISTIT finální DOKONČENÍ STAVBY. 
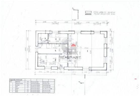
Ve výhradním zastoupení majitele nabízíme k prodeji novostavbu RD (rodinný ...dům) (ve fázi hrubé stavby) o dispozici 4+1 v obci Orlické Záhoří,  okr.  Rychnov nad Kněžnou.  Jedná se o jednopodlažní nepodsklepený rodinný dům se sedlovou střechou a s podkrovím.  Dům je situovaný v klidné a příjemné lokalitě zastavěné rodinnými domy a rekreačními objekty.  Celková výměra pozemku činí 1247 m2  -  z toho zastavěná plocha RD (rodinný dům) 66 m2,  užitná plocha 100, 8 m2.  
Inženýrské sítě se nachází na hranici pozemku (elektřina).  Objekt bude zásobován vodou z vlastní vrtané studny (je již vybudována).  Splašková kanalizace bude zaústěna do domovní čistírny odpadních vod (realizaci nebude zajišťovat stávající majitel). 
V obci se nachází MŠ,  ZŠ,  obchod se smíšeným zbožím. 
Možnost financování hypotékou,  kterou Vám v případě Vašeho zájmu rádi vyřídíme.  Více info telefonicky nebo emailem u makléřky. 
            
            
    - Vložení inzerátu:
7.12.2019 
     - Kód:
0114 
         - Typ nemovitosti:
Rodinný dům 
 
            - Typ budovy:
Cihlová 
     
    
            
    - Zastavěná plocha:
66 m2
 
            - Podlahová plocha:
100 m2
         - Plocha parcely:
1247 m2
     
                                                
            - Stav objektu:
Novostavba 
                 
    
            - Umístění objektu:
Klidná část 
         
                
                
            
    - Energetická náročnost:
G - Mimořádne nehospodárná 
         
    - Nabídky v okolí:
 
- Informace o obci:
Obec Orlické Záhoří  má 196 obyvatel, z toho 141 v produktivním věku.
V obci se nachází pošta.
V obci se nachází zdravotní zařízení.
V obci je rozvod městské vody.