• Sledovat cenu
  •  

Zasílání upozornění emailem:

Rodinný dům, 100 m2 - Havlíčkova, Lanškroun, okr. Ústí nad Orlicí (již není v nabídce)

Cena: 2 900 000 Kč
Stav:archiv
100 m2, cihlová, parcela 398 m2
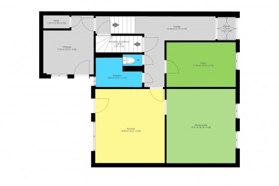
Popis: Nabízíme ke koupi rodinný dům 3+1 o výměře cca 100 m2 v Lanškrouně, okr. Ústí nad Orlicí. Tento řadový rodinný dům se nachází v klidné a příjemné lokalitě na ul. Havlíčk...ova. Dispozici přízemí tvoří dva pokoje, kuchyně, koupelna, samostatné sociální zařízení WC, prostorná chodba se zádveřím, malý sklípek pod schody a v zadní části zděný přístavek. V podkroví se nachází jeden pokoj a prostorná půda, která nabízí možnost další vestavby. Vytápění objektu a ohřev vody zajišťuje plynový kotel. Dům je téměř celý vyklizený a připravený k rekonstrukci dle vlastních představ. Na dům v zadní části navazuje zahrada s několika ovocnými stromy, zahradním altánem a skleníkem.

Lokalita v okolí domu prošla celkovou revitalizací, nové jsou komunikace, chodníky, parkovací místa a veřejné osvětlení. Velkou výhodou je vynikající dostupnost služeb a občanské vybavenosti, nejbližší restaurace se nachází ve vzdálenosti 1 minutu pěší chůze, dále základní škola (1 minutu), kulturní dům (8 minut), autobusové nádraží (8 minut), mateřská škola (5 minut), vlakové nádraží (8 minut), supermarkety (8 minut), centrum města (15 minut). Vzhledem k omezené nabídce domů v Lanškrouně, doporučujeme si sjednat prohlídku.
  • Vložení inzerátu:
    26.10.2024
  • Kód:
    2024016
  • K dispozici od:
    0.0.0
  • Typ nemovitosti:
    Rodinný dům
  • Typ budovy:
    Cihlová
  • Podlahová plocha:
    100 m2
  • Plocha parcely:
    398 m2
  • Sklep:
    Ano
  • Stav objektu:
    Před rekonstrukcí
  • Umístění objektu:
    Klidná část
  • Voda:
    dálkový vodovod
  • Elektřina:
    230 V
  • Doprava:
    vlak, silnice, autobus
  • Topeni:
    lokální plynové
  • Plyn:
    plynovod
  • Odpad:
    kanalizace
  • Komunikace:
    asfaltová
  • Energetická náročnost:
    G - Mimořádne nehospodárná
  • Nabídky v okolí:
  • Informace o obci:
    Obec Lanškroun má 10123 obyvatel, z toho 7077 v produktivním věku.
    V obci se nachází pošta.
    V obci se nachází škola, popř. školka.
    V obci se nachází zdravotní zařízení.
    V obci je rozvod kanalizace.
    V obci je rozvod městské vody.
    V obci je rozvod plynu.

Podobné nabídky v okolí

Lokalita: Havlíčkova , Lanškroun, okres Ústí nad Orlicí, Česká republika Havlíčkova, Lanškroun, okr. Ústí nad Orlicí