• Sledovat cenu
  •  

Zasílání upozornění emailem:

Rodinný dům, 100 m2 - Kroupova, Brno, okr. Brno-město (již není v nabídce)

Cena: 9 270 000 Kč
Stav:archiv
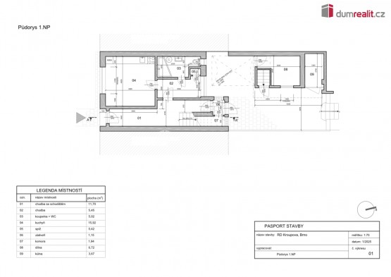
100 m2, cihlová, parcela 426 m2
Popis: + provize RK. Velmi ráda Vám zprostředkuji prodej rodinného domu v Brně v městské části Starý Lískovec! Dispozičně se jedná o 2+1 s užitnou plochou cca 100 m². Jedná se o zděný dům s...e dvěma nadzemními podlažími a půdou. 1. NP (první nadzemní patro) se sestává ze vstupu, teracového schodiště, kuchyně, koupelny s sociální zařízení WC a spíže. V 2. NP (druhé nadzemní patro) se nachází dva obytné pokoje, které jsou přístupné z chodby. Dům je částečně zateplen, okna domu jsou plastová. Podlahová krytina je tvořena buďto keramickou dlažbou či dřevěnými prkny. Dům je vytápěn pomocí plynového kotle značky Buderus, který zde byl nainstalován zhruba 2 roky zpět. PENB - D. Objekt je napojen na veškeré inženýrské sítě (vodovod, plynovod, elektro a kanalizace). Na pozemku za domem se nachází dvůr, na němž stojí stavba sloužící jako dílna, která je částečně podsklepená. Za dvorem, oddělená 4 schody je zahrada s ovocnými stromy (3 meruňky, 2 jabloně, bezostné ostružiny a cca 10 hlav vinné révy) a možností pěstování zeleniny. Přes zahradu je možnost přístupu k tramvajovým zastávkám. Nemovitost je v dobrém technickém stavu, avšak vzhledem ke stáří rekonstrukce se nabízí i možnost úprav dle svých vlastních představ. K dispozici Vám bude také parkovací stání přímo před domem. Jedná se o klidnou lokalitu s okolní rodinnou zástavbou a s velice dobrou občanskou vybaveností i dopravní dostupností. V blízkosti se nachází základní i mateřská škola, sportoviště i nákupní centrum. K procházkám láká nedaleký park. V docházkové vzdálenosti se nachází jak autobusová tak i tramvajová zastávka. Volný dle dohody. V rámci služeb zajistíme veškerý právní servis i vyřízení financování. Ev. číslo: 649830. Energetický štítek: D
  • Vložení inzerátu:
    19.4.2025
  • Kód:
    3975485
  • Typ nemovitosti:
    Rodinný dům
  • Typ budovy:
    Cihlová
  • Zastavěná plocha:
    121 m2
  • Podlahová plocha:
    100 m2
  • Plocha parcely:
    426 m2
  • Stav objektu:
    Dobrý
  • Umístění objektu:
    Klidná část
  • Energetická náročnost:
    D - Méne úsporná
  • Nabídky v okolí:
  • Informace o obci:
    Obec Brno má 371371 obyvatel, z toho 256490 v produktivním věku.
    V obci se nachází pošta.
    V obci se nachází škola, popř. školka.
    V obci se nachází zdravotní zařízení.
    V obci je rozvod kanalizace.
    V obci je rozvod městské vody.
    V obci je rozvod plynu.

Podobné nabídky v okolí

Lokalita: Kroupova , Brno, okres Brno-město, Česká republika Kroupova, Brno, okr. Brno-město