• Sledovat cenu
  •  

Zasílání upozornění emailem:

Rekreační objekt 84 m2 - Žabovřesky, okr. České Budějovice (již není v nabídce)

Cena: 4 550 000 Kč
Stav:archiv
84 m2, cihlová, OV, parcela 330 m2
Popis: Tahle chata by v mnohém zastínila i některé rodinné domy. Majitelé ji postavili a vybavili s velkou pečlivostí a citem. Stojí na klidném místě a užít si tu můžete rekreaci po celý rok.

Ve výhradním zastoupení majitelů vá...m nabízím prodej novostavby zateplené zděné chaty v Dehtářích, asi 11 km západně od Českých Budějovic.

Nejprve trochu těch základních dat.
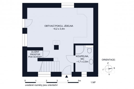
Chata má vnitřní podlahovou plochu lehce přes 74 m², dispozici 3+kk, stojí na vlastním pozemku o výměře 330 m² a má zastavěnou plochu 45 m². Vedle chaty je ještě parkovací místo (ve svahu), před chatou terasa o výměře asi 12 m², za chatou stojí pergola s posezením a zahradním krbem (cca 10 m²) a také uzamykatelný zamřížovaný skládek (cca 4 m²).

Pojďme dovnitř. Využijte naši virtuální prohlídku. Pokud se Vám nezobrazuje, napište si o ni skrze formulář u inzerátu. Pomocí této prohlídky si můžete celou chatu projít z pohodlí vašeho domova. V přízemí kompletně vybavené chaty si posedíte v obýváku spojeném s kuchyní. Máte tu i jídelní stůl a hlavně parádní kachlová krbová kamna. V patře máte dva pokoje – jeden je velký, druhý menší. Pokud chatu koupíte, nemusíte řešit vybavení – vše podstatné uvnitř zůstane.

Jak je to s technickým zázemím? Elektřina je samozřejmostí – vždyť pohání i podlahové vytápění po celé chatě. To můžete ovládat i s pomocí telefonu a WiFi. Do domovní čistírny proudí voda ze 44 metrů hlubokého nového vrtu. Čističku odpadních vod nechali majitelé také vybudovat úplně nově. Majitelé chatu zateplili od základů až po střechu. A zmíněnou „wifinu“ na chatě máte samozřejmě v provozu.

K chatě zajedete po obecní cestě a zaparkovat můžete před ní. Pokud nechcete jet na kole, dostanete se do obce i linkovým autobusem. Rybník Dehtář je oblíbený a vyhledávaný windsurfaři. Občerstvit se můžete u nedalekého kiosku. V okolí si užijete nádhernou přírodu, koupání i cyklostezky. A daleko to nebudete mít ani na výlety na Hlubokou, do Budějc, za krásami Blanského lesa, nebo do vyhledávaných Holašovic (na seznamu světového kulturního dědictví UNESCO).

Chcete poslat více podkladů ke čtení? Anebo dáte přednost osobní prohlídce chaty? Vyplňte prosím formulář u inzerátu. Dostanete odpověď s veškerými informacemi do 20 minut na e - mail, který uvedete. (Zkontrolujte si, prosím, i složky "Spam" a "Nevyžádaná pošta". Občas se tam e - mail může zatoulat. )
  • Vložení inzerátu:
    20.6.2024
  • Kód:
    3813952
  • K dispozici od:
    1.8.2024
  • Typ nemovitosti:
    Chaty a chalupy
  • Typ budovy:
    Cihlová
  • Vlastnictví:
    OV
  • Podlaží:
    2
  • Zastavěná plocha:
    45 m2
  • Podlahová plocha:
    84 m2
  • Plocha parcely:
    330 m2
  • Terasa:
    10 m2
  • Stav objektu:
    Novostavba
  • Umístění objektu:
    Klidná část
  • Telekomunikace:
    Internet
  • Elektřina:
    230 V, 380 V
  • Doprava:
    silnice, autobus
  • Topeni:
    ústřední elektrické
  • Zařízený:
    Ano
  • Energetická náročnost:
    D - Méne úsporná
  • Ukazatel náročnosti:
    110 kWh/m2
  • Nabídky v okolí:
  • Informace o obci:
    Obec Žabovřesky má 420 obyvatel, z toho 296 v produktivním věku.
    V obci se nachází zdravotní zařízení.
    V obci je rozvod kanalizace.
    V obci je rozvod městské vody.

Podobné nabídky v okolí

Lokalita: Žabovřesky, okres České Budějovice, Česká republika Žabovřesky, okr. České Budějovice, Jihočeský kraj