• Sledovat cenu
  •  

Zasílání upozornění emailem:

Rekreační objekt 750 m2 - Bílá , okr. Frýdek-Místek (již není v nabídce)

Cena: 6 290 000 Kč
Stav:archiv
750 m2, parcela 763 m2
Popis: Přemýšlíte kam na své cestě životem dál a máte možnost a chuť výhodně zainvestovat do své budoucnosti? Chcete se posunout jiným směrem, začít podnikat a ještě nevíte v jakém oboru? Pak mám pro Vás tip - splňte si svůj sen ...a kupte si tuto nemovitost s přilehlým pozemkem a přetvořte si ji k obrazu svému! Navíc je zde možnost dokoupit si přilehlé parkoviště s asfaltovou plochou o rozloze 3480m2.

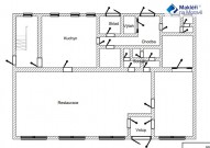
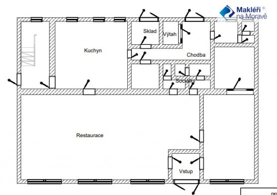
V katastru nemovitostí je budova vedena jako rodinný dům, nicméně v ní byla dlouhá léta provozovaná restaurace nacházející se v přízemí, s ubytováním v podkroví - 3 pokoje s vlastním soc. zařízením a byt o velikosti 2+kk, je podsklepená. Nachází se přímo na hranici se Slovenskem /hlavní tah z Valašského Meziříčí směr Žilina/ a její lukrativní polohu není potřeba nijak zvlášť vyzdvihovat, každý kdo alespoň občas jezdí tímto směrem na Slovensko si ji velmi dobře uvědomuje. Nejde jen o umístění v těsné blízkosti silnice s možností parkování, ale také díky situování v přírodě - vede tudy značné množství turistických tras, což znamená, že kolem denně projde spousta turistů. Pan majitel mi řekl: "Kdyby mi bylo o 20 let méně, nikdy bych to neprodal. " Nyní však uznává, že je čas předat žezlo dál, začít si v penzi konečně užívat peníze, které mu toto podnikání vydělalo a nechat vdýchnout objektu novou atmosféru.

Jestli jste to právě vy, kdo chce navázat na tento příběh a pokračovat v jeho tvoření jakýmkoliv způsobem si budete přát, neváhejte a zavolejte si o víc informací a prohlídku nemovitosti makléřce!
  • Vložení inzerátu:
    16.4.2023
  • Kód:
    21450-1
  • K dispozici od:
    0.0.0
  • Typ nemovitosti:
    Chaty a chalupy
  • Podlahová plocha:
    750 m2
  • Plocha parcely:
    763 m2
  • Stav objektu:
    Dobrý
  • Umístění objektu:
    Rušná část
  • Elektřina:
    230 V, 380 V
  • Nabídky v okolí:
  • Informace o obci:
    Obec Bílá má 842 obyvatel, z toho 610 v produktivním věku.
    V obci je rozvod městské vody.

Podobné nabídky v okolí

Lokalita: Bílá , okres Frýdek-Místek, Česká republika Bílá , okr. Frýdek-Místek, Moravskoslezský kraj