• Sledovat cenu
  •  

Zasílání upozornění emailem:

Rekreační objekt 72 m2 - Pozděchov , okr. Vsetín (již není v nabídce)

Cena: 4 191 000 Kč
Stav:archiv
72 m2, cihlová, parcela 961 m2
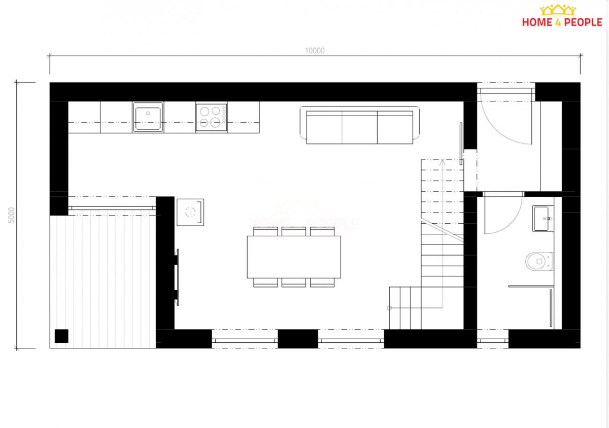
Popis: Cena včetně stavby, pozemku, provize a DPH. Zprostředkujeme Vám výstavbu objektu č. 1 celoročnímu nebo rekreačnímu bydlení v oblasti obce Pozděchov okr. Vsetín a pozemkem o velikosti 961m². Pozemek má šíři 21, 5m. Patro...vá stavba o zastavěné ploše 50m² bude řešena jako zděná, kdy přízemí bude tvořit dispozici obývací pokoj s kuchyňským koutem, koupelnou a sociální zařízení WC. Z obývacího pokoje bude výstup přes francouzské dveře na terasu o velikosti cca 10m². Po schodišti do podkroví naleznete dva oddělené pokoje a sociální zařízení WC. Celková užitná plocha bez terasy bude 72m². Strop a schodiště bude betonové. Vytápění bude řešeno elektrickými nástěnnými panely s prostorovým termostatem se zabudovaným dálkovým ovládáním pro panely s kombinací krbových kamen, kdy v ceně se počítá s komínovým systémem. Ohřev vody bude zajištěn 120l elektrickým bojlerem. Sociální zařízení bude tvořit umyvadlo se skříňkou, sprchový kout a sociální zařízení WC. Součástí uvedené ceny je stavba na klíč včetně DPH, pozemek, projekt, vyřízení stavebního povolení, základová deska, a zajištění přípojného místa elektřiny. V uvedené ceně můžete počítat s finálními povrchovými úpravami exteriéru i interiéru, a to včetně elektroinstalací, sanitárního vybavení s bateriemi, interiérovými dveřmi, obklady, dlažbou a podlahovou krytinou. U stavby se také počítá se 7 kubíkovou jímkou a 2 kubíkovou retenční nádrží, která bude spojena přímo s objektem pro zajištění užitkové vody pro sprchování, sociální zařízení WC a do kuchyně. Objekt bude zateplen kontaktním zateplovacím systémem polystyren EPS70 100 mm a také podlahy budou izolovány tepelnou izolací - polystyren EPS100 - 100 mm. Úpravy v projektu jsou možné stejně jako nechat si vypracovat jiný typ objektu dle požadavků. V případě navýšení zastavěné plochy se cena bude navyšovat. Nabízíme možnost také zbudovat studnu spojenou s chatou nebo zbudovat podsklepení pod terasou. Přístup k pozemku zajištěn a to jak po obecní nezpevněné komunikaci tak přes pozemky, které jejich podíly jsou součástí kupní ceny pozemku. Podrobnější informace sdělí makléř. Ev. číslo: 31536.
  • Vložení inzerátu:
    16.4.2025
  • Kód:
    3974409
  • Typ nemovitosti:
    Chaty a chalupy
  • Typ budovy:
    Cihlová
  • Podlahová plocha:
    72 m2
  • Plocha parcely:
    961 m2
  • Nabídky v okolí:
  • Informace o obci:
    Obec Pozděchov má 551 obyvatel, z toho 382 v produktivním věku.
    V obci je rozvod městské vody.
    V obci je rozvod plynu.

Podobné nabídky v okolí

Lokalita: Pozděchov , okres Vsetín, Česká republika Pozděchov , okr. Vsetín, Zlínský kraj