• Sledovat cenu
  •  

Zasílání upozornění emailem:

Rekreační objekt 58 m2 - B. Němcové, Káraný, okr. Praha-východ

Cena: 10 550 000 Kč
Stav:Volný
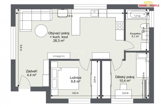
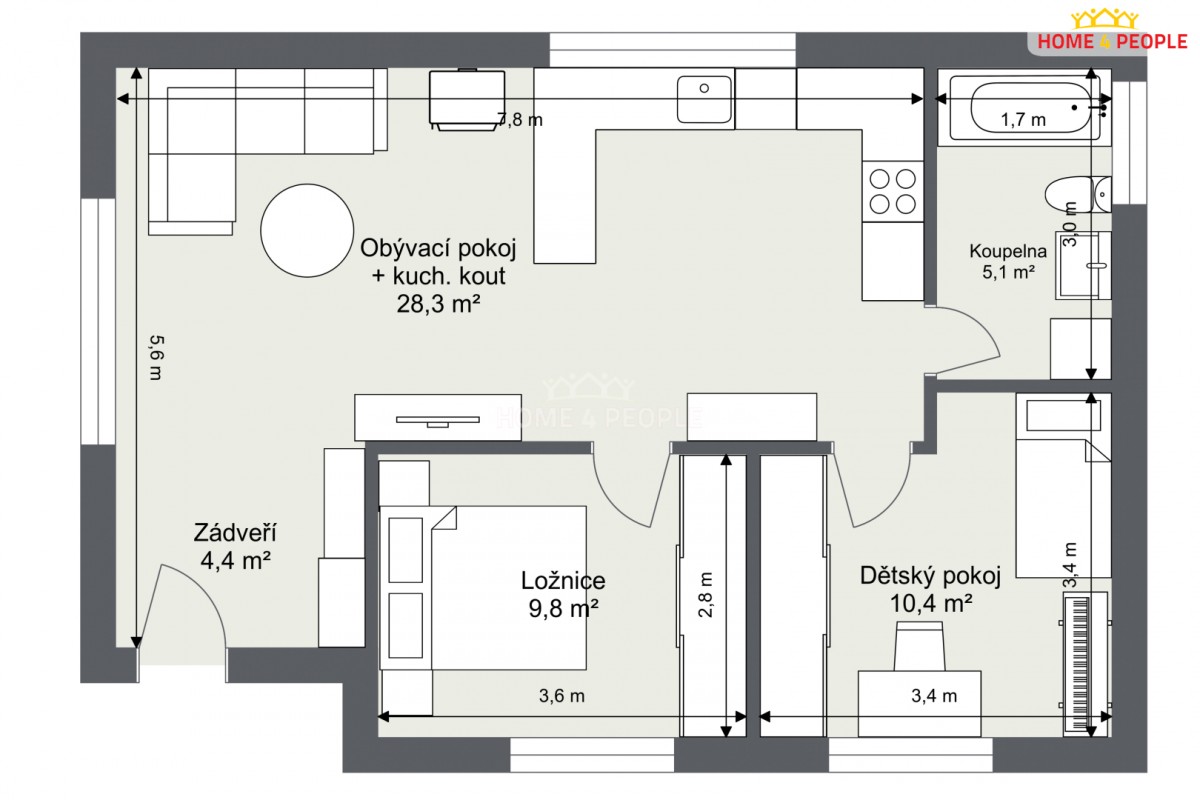
58 m2, dřevostavba, parcela 492 m2
Popis: včetně provize RK a právního servisu. Zprostředkujeme Vám ve výhradním zastoupení moc hezký menší dům - chatu k celoročnímu užívaní (kolaudovaný 2024 s číslem evidenčním) o dispozici ...>3+kk na nádherném místě v rezidenční části Káraného na Praze východ obklopený spoustou zeleně, a navíc u řeky.
Dominantou domu je kuchyň s obývacím pokojem s kachlovými kamny na dřevo což dodává krásnou atmosféru celému domu. Dále najdete dvě ložnice, krásnou koupelnu s vanou a sociální zařízení WC.
Na pozemku jsou ještě kůlny a plechová garáž se zastavěnou plochou 21m.
V domě jsou použité kvalitní stavební materiály. Jedná se o dřevostavbu, která je zateplena 160mm polystyrenem, okna jsou trojskla, dům disponuje nádrží na dešťovou vodu (7k), která je napojena na splachování sociální zařízení WC. V domě je příprava na alarm, kamerový systém, elektrické vedení je i na bránu a garáž, všude jsou nezámrzné kohouty na vodu. Půda je rovněž připravena na zvětšení prostoru či případné nástavby obytného podkroví. Topení je podlahové a dá se ovládat přes wifi, což dává pohodlí si na dálku vyhřát dům.

Dům se nachází v klidné a příjemné lokalitě obce Káraný v těsné blízkosti řeky Jizery, ale není v záplavové zóně. Perfektní dojezdová vzdálenost do Prahy, 20 min. autem na Černý Most. Do Brandýsa nad Labem je to pouhých 10 min. autem a autobus č. 666 jezdí každou hodinu. V obci se nachází mateřská školka, tato lokalita vhodná pro mladé rodiny s dětmi.
Obec Káraný má kulturní život a v obci je i vynikající Vinohradský pivovar.
V obci se nachází mateřská školka, tato lokalita vhodná pro mladé rodiny s dětmi

Z důvodu, že před zadáním do inzerce nebyl vyhotoven PENB, je tato nemovitost v souladu s platným zákonem zařazena do energetické třídy G.
Předpokládaná energetická náročnost domu třídy B, velice úsporná.

Dům se prodává včetně vybavení, tedy nic víc nepotřebujete a můžete se rovnou nastěhovat. Pro více informací neváhejte kontaktovat makléře či na mém webu najdete všechny fotografie. Možné financovat hypotečním úvěrem bez dokládání příjmů, pouze složení 20% vlastních zdrojů, se kterým Vám rádi pomůžeme zdarma vyřídit za nejlepších podmínek na trhu. K dispozici dle dohody. Prohlídky dle telefonické domluvy. Těším se na naše společné setkání při prohlídce. Ev. číslo: 31973. Energetický štítek: B (1 kWh/m2/rok).
  • Vložení inzerátu:
    15.10.2025
  • Kód:
    3992229
  • Typ nemovitosti:
    Chaty a chalupy
  • Typ budovy:
    Dřevostavba
  • Podlahová plocha:
    58 m2
  • Plocha parcely:
    492 m2
  • Stav objektu:
    Novostavba
  • Energetická náročnost:
    B - Velmi úsporná
  • Ukazatel náročnosti:
    1 kWh/m2
  • Nabídky v okolí:
  • Informace o obci:
    Obec Káraný má 644 obyvatel, z toho 440 v produktivním věku.
    V obci se nachází pošta.
    V obci je rozvod kanalizace.
    V obci je rozvod městské vody.
    V obci je rozvod plynu.
Lokalita: B. Němcové , Káraný, okres Praha-východ, Česká republika B. Němcové, Káraný, okr. Praha-východ

Kontakt

Martina Novotná (Voslářová)
Objednání prohlídky a více informací


Podobné nabídky v okolí


Volná pracovní místa ExpertPrace.cz
  • Objednání prohlídky a více informací
  •  
  • Poslat na e-mail
  •  

Zasílání odkazu na realitu emailem: