• Sledovat cenu
  •  

Zasílání upozornění emailem:

Rekreační objekt 53 m2 - Mirošovice , okr. Praha-východ (již není v nabídce)

Cena: 3 850 000 Kč
Stav:archiv
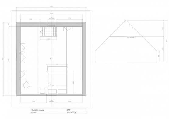
53 m2, cihlová, parcela 995 m2
Popis: Představujeme vám dvoupodlažní chatu ve výjimečné rekreační lokalitě na Praze - východ. Chata je umístěna na slunném místě obklopeném lesem, na mírně svažitém pozemku s vlastní zahradou, sousedícím se železniční tratí mezi... Mirošovicemi a Senohraby, se skvělou dostupností autem (5 minut od sjezdu z dálnice D1) nebo vlakem (pěšky 7 minut od vlakové stanice).

Chata byla vybudována v roce 2000 a před několika lety modernizována a okolní terén zpevněn rozsáhlými kamennými prvky (zídky, dlažba, chodníky, schody). Na zahradě jsou ovocné stromy a keře, záhony, trávník s luční trávou a živé ploty. Chata stojí na betonovém základě, je téměř celá zateplená, vytápění je řešeno krbovými kamny na dřevo, zdroj vody z vlastního vrtu (27 m hloubka), ohřev vody bojlerem, elektřina produkována 12 solárními panely, vaření na plynové bombě, kanalizace trativodem. Oplocený pozemek o výměře 1023 m2, zastavěná plocha 28 m2, podlahová plocha 53 m2, zahrada 995 m2, kůlna 5 m2.

Interiér se sestává ze zádveří, obytné kuchyně s jídelnou, koupelny s vanou a kompostovací toaletou, technického zázemí (včetně systému a baterií k solárním panelům), v patře z prostorné světlé ložnice s přístupem do půdního prostoru. Na venkovní kryté terase můžete posedět za jakéhokoliv počasí. Parkovat můžete pohodlně na vlastním pozemku, na cestě před domem jsou další místa.

V lokalitě panují přátelské sousedské vztahy. Na své si přijdou milovníci vlaků, nad pozemkem vede trať, lze tak pozorovat projíždějící vlaky i speciálně vypravované parní historické soupravy.

Cena je 3. 850. 000 Kč včetně služeb realitní a advokátní kanceláře. Součástí ceny je také zařízený interiér chaty včetně venkovního posezení, vybavení kůlny a dříví. PENB není v tuto chvíli k dispozici, proto uvádíme třídu G.
  • Vložení inzerátu:
    6.5.2025
  • Kód:
    316455
  • Typ nemovitosti:
    Chaty a chalupy
  • Typ budovy:
    Cihlová
  • Zastavěná plocha:
    28 m2
  • Podlahová plocha:
    53 m2
  • Plocha parcely:
    995 m2
  • Stav objektu:
    Velmi dobrý
  • Umístění objektu:
    Okraj
  • Doprava:
    silnice, dálnice, autobus, vlak
  • Plyn:
    individuální
  • Zařízený:
    Ano
  • Bezbariérový přístup:
    Ano
  • Nabídky v okolí:
  • Informace o obci:
    Obec Mirošovice má 1107 obyvatel, z toho 756 v produktivním věku.
    V obci se nachází zdravotní zařízení.
    V obci je rozvod kanalizace.
    V obci je rozvod městské vody.
    V obci je rozvod plynu.

Podobné nabídky v okolí

Lokalita: Mirošovice , okres Praha-východ, Česká republika Mirošovice , okr. Praha-východ, Středočeský kraj