• Sledovat cenu
  •  

Zasílání upozornění emailem:

Rekreační objekt 40 m2 - Petrov, okr. Praha-západ

Cena: 950 000 Kč
Stav:Volný
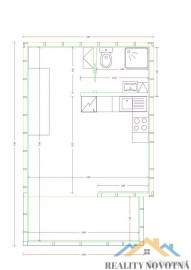
40 m2, dřevostavba
Popis: Prodej samostatné novostavby chaty, kterou je nutno z úředního rozhodnutí odstranit z pozemku, nejedná se o prodej nemovitosti s pozemkem. Chatu majitel přenese na Váš pozemek ve středních Čechách. Cena 950. 000, - Kč ... včetně přesunu a výměny nepřenositelných dílů ( střešní krytina, komín ap. ) za nové nebo 550. 000, - Kč, pokud si zajistíte demontáž, montáž a přesun na vlastní náklady. Revize elektro a komínu v ceně. Základové patky v ceně. Okna dřevěná s izolačním dvojsklem. Zatepleno 20cm vaty, podlaha 15cm EPS. Další údaje a foto zašleme na vyžádání. Prohlídka před přenesením je samozřejmě po dohodě možná. Majitel může zajistit i služby související se stavebním povolením a připojením na sítě na novém pozemku. Pro více informací kontaktujte makléřku.
  • Vložení inzerátu:
    31.10.2021
  • Kód:
    17/5299
  • Typ nemovitosti:
    Chaty a chalupy
  • Typ budovy:
    Dřevostavba
  • Zastavěná plocha:
    40 m2
  • Podlahová plocha:
    40 m2
  • Plocha parcely:
    40 m2
  • Stav objektu:
    Novostavba
  • Umístění objektu:
    Polosamota
  • Bezbariérový přístup:
    Ano
  • Energetická náročnost:
    G - Mimořádne nehospodárná
  • Nabídky v okolí:
  • Informace o obci:
    Obec Petrov má 537 obyvatel, z toho 370 v produktivním věku.
    V obci se nachází pošta.
    V obci je rozvod kanalizace.
    V obci je rozvod městské vody.
Lokalita: Petrov, okres Praha-západ, Česká republika Petrov, okr. Praha-západ, Středočeský kraj

Kontakt



Podobné nabídky v okolí


Volná pracovní místa ExpertPrace.cz
  • Objednání prohlídky a více informací
  •  
  • Poslat na e-mail
  •  

Zasílání odkazu na realitu emailem: