• Sledovat cenu
  •  

Zasílání upozornění emailem:

Rekreační objekt 394 m2 - Jindřichovice , okr. Sokolov (již není v nabídce)

Cena: 4 150 000 Kč
Stav:archiv
394 m2, cihlová, parcela 309 m2
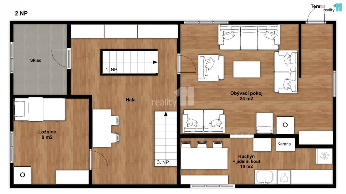
Popis: Exklusivně prodej podkrušnohorské chalupy v obci Mezihorská. Jedná se o mimořádnou lokalitu pro kolaře, běžkaře, houbaře a všechny milovníky hor. Chalupa byla užívána převážně od jara do podzimu, ideální jsou víkendové p...obyty. V kamenném suterénu o 85m² zastavěné plochy se nachází společenská místnost s posezením a krbem o 35m², dále zádveří, koupelna se sprchovým koutem a sociální zařízení WC. Navazuje garáž s 23m² s vybavenou dílnou a kotoučovou pilou skladová místnost. První nadzemní cihlové poschodí do kterého vedou dřevěné schody nabízí prostornou halu se vstupy do ložnice s kamny na tuhá paliva o 9m², skladu ale především obývacího pokoje o 24m² kde jsou instalovány krbová kamna a kuchyně s jídelním koutem. Kuchyňka je vybavena myčkou, el. troubou, plynovým vařičem, kamny na tuhá paliva a průtokovým ohřívačem vody. Podlahy v tomto patře jsou v kombinaci dřeva a PVC krytiny. V zadní části obývacího pokoje je východ na terasu, které je vystavěna na jižní stranu do zahrady. Dále se z haly v prvním patře dostanete po dřevěných schodech do druhého nadzemního patra. Toto vzdušné a interiérově zajímavé dílo vás dřevěnou lávkou spojí do druhé podkrovní ložnice o 11m² a půdního prostoru. Do chalupy je přivedeno 230/380V, voda je odebírána z vlastní studny a čerpána čerpadlem, teplou vodu zajišťuje el. 80l. bojler, odpad je sveden do septiku. Bonusem je nová krytina střechy z kanadského šindele z roku 2022. Zahrada na jižní a západní straně chalupy o ploše 309m² nabízí skleník, několik vzrostlých stromů a keřů. Pokud Vás nabídka zaujala, neváhejte mě kontaktovat k domluvení prohlídky. Případné financování Vám zajistí naše specialistka. Ev. číslo: 27130. Energetický štítek: G
  • Vložení inzerátu:
    10.3.2025
  • Kód:
    3960072
  • Typ nemovitosti:
    Chaty a chalupy
  • Typ budovy:
    Cihlová
  • Podlahová plocha:
    394 m2
  • Plocha parcely:
    309 m2
  • Stav objektu:
    Dobrý
  • Energetická náročnost:
    G - Mimořádne nehospodárná
  • Nabídky v okolí:
  • Informace o obci:
    Obec Jindřichovice má 506 obyvatel, z toho 367 v produktivním věku.
    V obci se nachází pošta.
    V obci se nachází zdravotní zařízení.
    V obci je rozvod kanalizace.
    V obci je rozvod městské vody.
    V obci je rozvod plynu.

Podobné nabídky v okolí

Lokalita: Jindřichovice , okres Sokolov, Česká republika Jindřichovice , okr. Sokolov, Karlovarský kraj