• Sledovat cenu
  •  

Zasílání upozornění emailem:

Rekreační objekt 35 m2 - Pod Kostelíčkem, Liběchov, okr. Mělník

Cena: 1 770 000 Kč
Stav:Volný
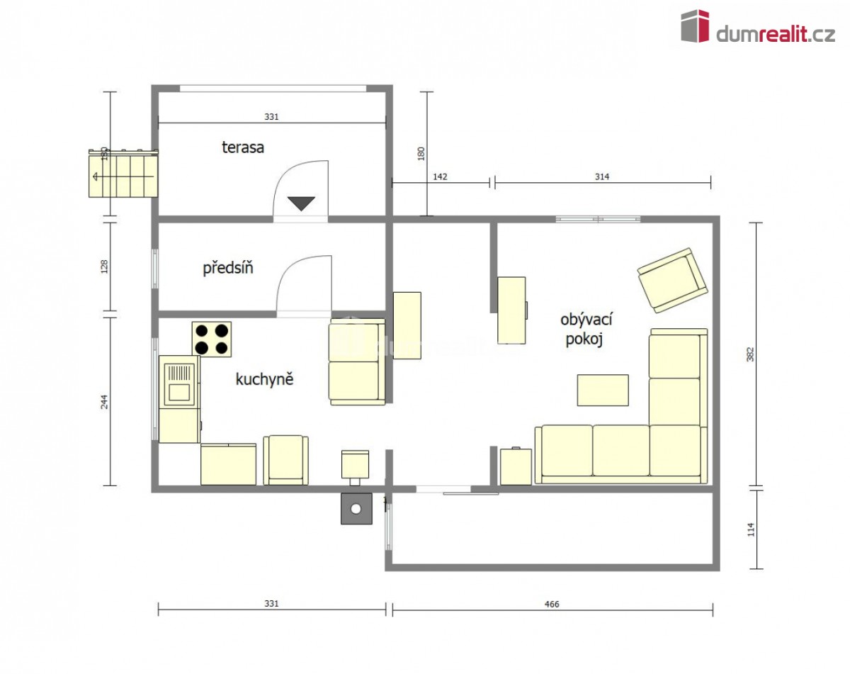
35 m2, dřevostavba, parcela 512 m2
Popis: Dumrealit. cz Vám nabízí prodej rekreační chaty na vlastním, oploceném pozemku o velikosti 512m² v obci Liběchov, okr. Mělník. Chata (zastavěná plocha činí 50m²) má číslo popisné, na katastru nemovitostí vedená jako rodi...nný dům. Podle současného způsobu využívání se jedná o nepodsklepenou rekreační chatu o dispozici 2+kk, s užitným podkrovím. Chata stojí na betonové desce, svislé nosné konstrukce jsou dřevěné, krovy dřevěné, trámové. Střecha je sedlová, část zakrývající verandu pultová. Jako krytina jsou použity šindele. Objekt není zateplen, vytápění je zabezpečeno kamny na tuhá paliva. Do chaty je zavedena elektřina, obecní voda, odpadní vody jsou svedeny do obecní kanalizace. Sociální zázemí v chatě není dořešeno. K příslušenství patří sklípek ve skále, okrasná zahrada s ovocnými stromy a vybudovaným místem pro posezení u zahradního grilu. Z pozemku je moc hezký výhled na Liběchov, řeku Labe, či vzdálenou horu Říp. Více info požadujte v RK. Ev. číslo: 653304. Energetický štítek: G
  • Vložení inzerátu:
    16.12.2025
  • Kód:
    4019599
  • Typ nemovitosti:
    Chaty a chalupy
  • Typ budovy:
    Dřevostavba
  • Podlahová plocha:
    35 m2
  • Plocha parcely:
    512 m2
  • Stav objektu:
    Dobrý
  • Energetická náročnost:
    G - Mimořádne nehospodárná
  • Nabídky v okolí:
  • Informace o obci:
    Obec Liběchov má 1034 obyvatel, z toho 711 v produktivním věku.
    V obci se nachází pošta.
    V obci se nachází škola, popř. školka.
    V obci se nachází zdravotní zařízení.
    V obci je rozvod městské vody.
Lokalita: Pod Kostelíčkem , Liběchov, okres Mělník, Česká republika Pod Kostelíčkem, Liběchov, okr. Mělník

Kontakt

Antonín Čvančara


Podobné nabídky v okolí


Volná pracovní místa ExpertPrace.cz
  • Objednání prohlídky a více informací
  •  
  • Poslat na e-mail
  •  

Zasílání odkazu na realitu emailem: