• Sledovat cenu
  •  

Zasílání upozornění emailem:

Rekreační objekt 220 m2 - Strpí , Číčenice, okr. Strakonice

Cena: 5 990 000 Kč
Stav:Volný
220 m2, parcela 1527 m2
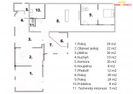
Popis: Nabízíme k prodeji dům v malebné obci Strpí, která se nachází v moc hezké přírodě Vodňanska, obklopené rybníky a lesy. Nemovitost je ideální jak pro trvalé bydlení, tak i pro rekreační využití. Celková plocha pozemku čin...í 1527 m², zastavěná plocha je 460 m² a podlahová plocha obytné části je 220 m².

Dům je vytápěn novým kotlem Beneko C27 s výkonem 30 kW, který umožňuje topení peletami, uhlím nebo dřevem. Půda je zateplena foukanou izolací. V přední obytné části jsou osazena eurookna a nové vstupní dveře s trojsklem. Voda je přivedena z obecního vodovodu, odpad je řešen septikem, a ohřev vody zajišťuje bojler. Na zahradě se nacházejí dvě studny, které je možné využít pro zálivku nebo další účely.

Dispozičně se dům skládá z obytné části, vjezdu s elektrickými vraty, pergoly, dřevníku a kotelny. Součástí nemovitosti je také uzavřený dvůr, který poskytuje maximální soukromí. Na dvoře se nachází kamenný sklep s různými možnostmi využití, například pro uskladnění potravin, vína nebo dalších věcí. Dvůr je navíc osázen vzrostlými stromy a okrasnými keři, což přispívá k příjemné atmosféře celého prostoru.

Obec Strpí je vyhledávanou lokalitou díky klidnému prostředí a blízkosti přírody. V okolí se nachází rybníky a lesy, které nabízejí možnosti pro relaxaci i aktivní odpočinek.

Dopravní dostupnost je velice dobrá. Do Vodňan, které poskytují kompletní občanskou vybavenost včetně škol, lékaře a obchodů, je to pouhých 5 km (cca 8 minut jízdy autem). Do Písku dojedete za 25 minut (25 km) a do Českých Budějovic za 35 minut (35 km). Do Prahy je to zhruba 120 km, což odpovídá přibližně hodině a tři čtvrtě jízdy autem. Obec má také dobré spojení autobusovou dopravou.

Pokud hledáte prostorné bydlení s velkým pozemkem v klidném venkovském prostředí, neváhejte nás kontaktovat. Rádi vám poskytneme více informací nebo domluvíme prohlídku. Ev. číslo: 31665. Energetický štítek: G
  • Vložení inzerátu:
    7.5.2025
  • Kód:
    3982840
  • Typ nemovitosti:
    Chaty a chalupy
  • Podlahová plocha:
    220 m2
  • Plocha parcely:
    1527 m2
  • Stav objektu:
    Velmi dobrý
  • Energetická náročnost:
    G - Mimořádne nehospodárná
  • Nabídky v okolí:
Lokalita: Strpí , Číčenice, okres Strakonice, Česká republika Strpí , Číčenice, okr. Strakonice, Jihočeský kraj

Kontakt

Lukáš Král


Podobné nabídky v okolí


  • Objednání prohlídky a více informací
  •  
  • Poslat na e-mail
  •  

Zasílání odkazu na realitu emailem: