• Sledovat cenu
  •  

Zasílání upozornění emailem:

Pronájem skladu 5 m2 - Proskovická, Výškovice, Ostrava, okr. Ostrava-město (již není v nabídce)

Cena: 2 000 Kč/měsíc
Stav:archiv
5 m2, cihlová
Popis: Nabízíme slevu 30 % na první měsíc pronájmu!
Využijte zvýhodněné nabídky a ušetřete při zahájení pronájmu.

Hledáte bezpečné a pohodlné místo pro uskladnění osobních či firemních věcí? Nabízíme k pronájmu skladovací prostor ...o velikosti 5 m za cenu 1 580 Kč/měsíc v Ostravě Výškovicích, na ulici Proskovická.

Prostor je suchý, s teplotou v zimním období kolem 15 °C.
Přístup je zajištěn přes rampu a ocelová vstupní vrata. Lokalita je dobře dostupná a sklad je zabezpečen proti neoprávněnému vniknutí.

Možné využití zahrnuje například sklad pro e - shop, úschovnu kol, sezónního vybavení, archiv dokumentů a další.
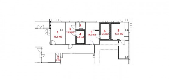
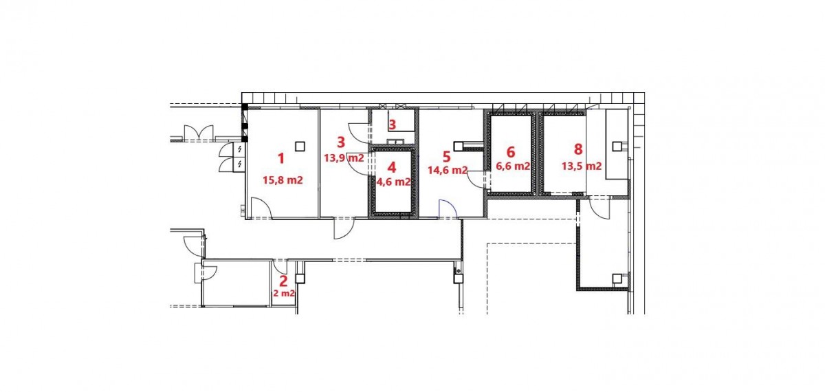
Skladovací prostor je vyznačen v půdorysu jako místnost č. 5 a č. 6.

Podobné nabídky v okolí

Lokalita: Proskovická , Výškovice, Ostrava, okres Ostrava-město, Česká republika Proskovická, Výškovice, Ostrava, okr. Ostrava-město