• Sledovat cenu
  •  

Zasílání upozornění emailem:

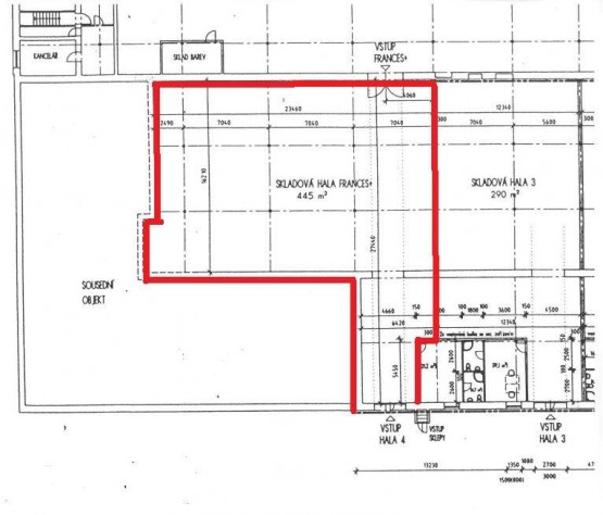
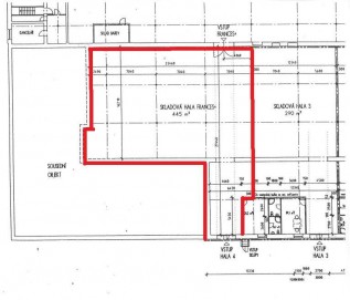
Pronájem skladu 470 m2 - Na Košince, Praha 8, Libeň, Praha (již není v nabídce)

Cena: 47 000 Kč/měsíc
Stav:archiv
470 m2, cihlová
Popis: Světlé a čisté skladové prostory a kancelář k pronájmu o velikosti 470 m2 se nachází v ulici Na Košince, Praha 8, Libeň. Je zde kancelář 25m2, sociální zařízení, jedno parkovací místo před objektem.... Podlahy jsou lité, je zde vzduchotechnika, alarm. Prostory byly rekolaudovány v roce 2012. Kamion (velký) ke skladu nezajede. Sklady je možné pronajmout od 8. 10. 2018 zhruba na 9 měsíců.

Podobné nabídky v okolí

Lokalita: Na Košince , Praha 8, Libeň, Praha, Česká republika Na Košince, Praha 8, Libeň, Praha