• Sledovat cenu
  •  

Zasílání upozornění emailem:

Pronájem skladu 380 m2 - Náchodská, Praha 9, Horní Počernice, Praha (již není v nabídce)

Cena: 90 Kč/m2/měsíc
Stav:archiv
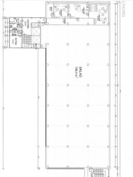
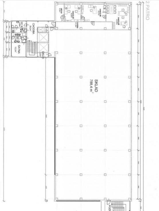
380 m2
Popis: Čisté skladové prostory 380 m2 v patře skladové budovy na Praze 9 - Horní Počernice. Prostor je obsloužen 2 krát nákladními výtahy, osobními výtahy, schodištěm.
- - - - - - - - - - - - - - - ...- - - - - - - - - - - - - - - - - - - - - - - - - - - - - - - - - -
Skladové plochy: 380 m2,
Cena nájmu hala: 90 Kč/m2/měsíc,
Cena nájmu kanceláře: 150 Kč/m2/měsíc (k jednání)
- - - - - - - - - - - - - - - - - - - - - - - - - - - - - - - - - - - - - - - - - - - - - - - - -
Prostory jsou suché, vytápěné, v celé budově EPS a EZS s napojením na pult centrální ochrany s okamžitým výjezdem zásahu.
Fyzická ostraha 24h/denně. Telefonní linky a internetové připojení (ADSL nebo wi - fi) k dispozici. . . . . . . . . . .
Vykládka, nakládka je možná přes přízemí /nákladní rampa/ a dále dvěma nákladními výtahy (1000kg a 1400kg, rozměry 2, 50 x 1, 60m, výška 210cm).
Příjezd pro všechny nákladní vozy včetně TIR bez problémů. VZV máme v provozu.
- - - - - - - - - - - - - - - - - - - - - - - - - - - - - - - - - - - - - - - - - - - - - - -
ARCHA průmyslová kancelář - 608 827 778, www. archacs. cz

Podobné nabídky v okolí

Lokalita: Náchodská , Praha 9, Horní Počernice, Praha, Česká republika Náchodská, Praha 9, Horní Počernice, Praha