• Sledovat cenu
  •  

Zasílání upozornění emailem:

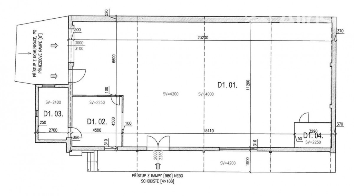
Pronájem skladu 308 m2 - Brno-jih , Brno, okr. Brno-město (již není v nabídce)

Cena: 42 041 Kč/měsíc
Stav:archiv
308 m2
Popis: Nabízím k pronájmu vytápěnou halu 308 m2 v areálu na viditelném místě. Vlastní hala má výměru 273 m2 a krytá rampa 35 m2. Součástí haly je vestavba dvou kanceláří a kuchyňky. Vstup do haly ...je sekčními vraty v úrovni terénu a z rampy, dojezd nárazově i TIR. Vytápění plynovým roburem. Díky poloze vhodné i jako prodejní sklad. Průkaz energetické náročnosti v řešení dle vyhlášky, údaj bude aktualizován, proto uvádíme nyní třídu G. Mapa nemusí zobrazovat přesnou polohu nemovitosti. Bližší informace u makléře na základě vyplnění kontaktního formuláře/odpovídače s představením firmy a záměru. Pokud jste si nevybrali z uveřejněné nabídky, zadejte nám prosím Vaši poptávku a my se pokusíme najít odpovídající nemovitost.
  • Vložení inzerátu:
    3.10.2021
  • Kód:
    BK141335
  • K dispozici od:
    0.0.0
  • Typ nemovitosti:
    Sklad
  • Podlahová plocha:
    308 m2
  • Stav objektu:
    Dobrý
  • Doprava:
    dálnice, MHD
  • Energetická náročnost:
    G - Mimořádne nehospodárná
  • Nabídky v okolí:

Podobné nabídky v okolí

Lokalita: Brno-jih , Brno, okres Brno-město, Česká republika Brno-jih , Brno, okr. Brno-město, Jihomoravský kraj