Pronájem RD, 316 m2 - Oddělená 2398, Praha 6, Břevnov, Praha (již není v nabídce)
Cena:
100 000 Kč/měsíc
Stav:archiv
316 m2, cihlová, parcela 700 m2
Popis:
Pronájem RD (rodinný dům) Ladronka Praha 6, 6 krát ložnice, zahrada, garáž pro dva vozy
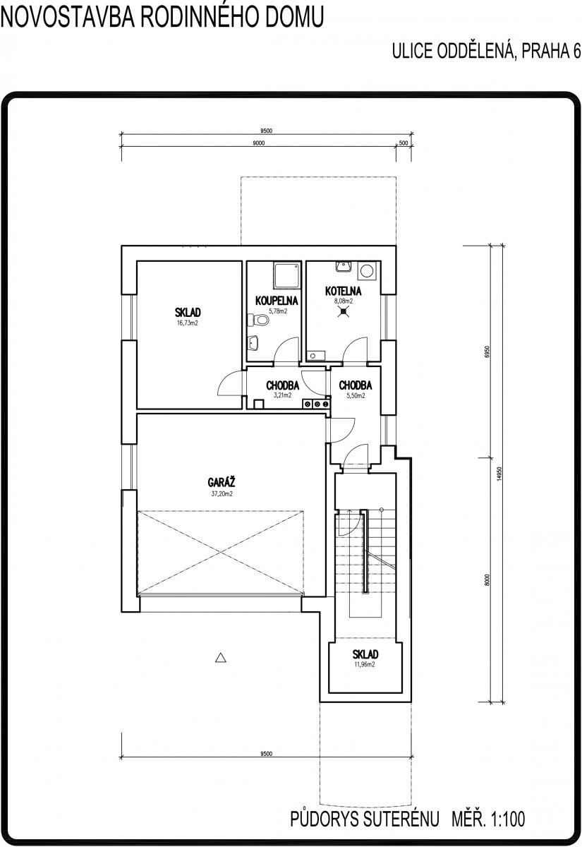
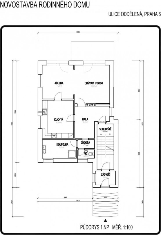
Pronajímaný dům je o podlahové ploše 316 m2 a tvoří ho ve zvýšeném přízemí hala, obývací pokoj, plně vybavená kuchyň se... spotřebiči, koupelna a samostatná toaleta. První patro má halu, 3 ložnice, koupelnu a toaletu, a v podkroví další dvě místnosti a koupelnu s toaletou. V suterénu je umístěna dvougaráž, kotelna a sklad, a také 1 pokoj a koupelnou s sociální zařízení WC. K domu náleží zahrada o přibližné ploše 700 m2.
Jednoznačně skvělé umístění u parku Ladronka poskytuje široké možnosti volnočasových aktivit.
Letiště 18 min autem.
Provoz nemovitosti měsíčně cca 15. 000 czk.
- Vložení inzerátu:
20.7.2022
- Kód:
Odd9
- Typ nemovitosti:
Rodinný dům
- Typ budovy:
Cihlová
- Zastavěná plocha:
90 m2
- Podlahová plocha:
316 m2
- Plocha parcely:
700 m2
- Stav objektu:
Novostavba
- Bezbariérový přístup:
Ano
- Nabídky v okolí: