Pronájem RD, 255 m2 - Nad Helmrovkou 259, Praha 6, Lysolaje, Praha (již není v nabídce)
Cena:
70 000 Kč/měsíc
Stav:archiv
255 m2, cihlová, parcela 916 m2
Popis:
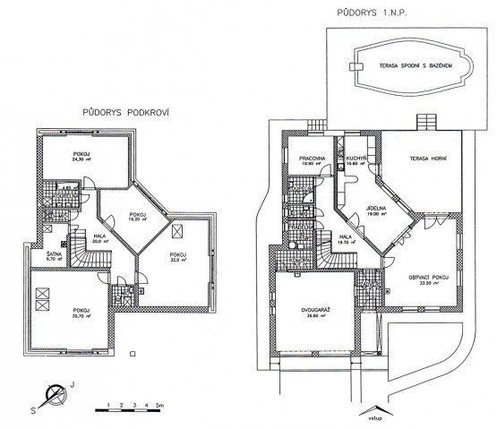
Pronájem luxusní vily 7+kk, terasa 36 m2 s jihovýchodní orientací a výhledem na panorama Prahy a Pražský hrad, luxusně vybavená kuchyně včetně spotřebičů, dvougaráž.... Okrasná zahrada s venkovním krytým vyhřívaným bazénem 8 krát 4 metru. Klidná lokalita na hranici přírodního parku Šárka. V přízemí domu se nachází prostorná hala, pracovna, jídelna s kuchyňským koutem, obývací pokoj ze kterého je vstup na terasu, dále komora, prádelna, koupelna se sprchovým koutem a samostaným sociální zařízení WC. V patře jsou čtyři samostatné neprůchozí pokoje, šatna, koupelna s vanou a dvě toalety. Vytápění domu a ohřev teplé vody je řešen plynovým kotlem. Měsíční poplatky 8000 Kč zahrnují i údržbu zahrady a bazénu. K nastěhování od 1. února 2020. Neplatíte provizi RK:
- Vložení inzerátu:
22.11.2019
- Kód:
RM1588
- Typ nemovitosti:
Rodinný dům
- Typ budovy:
Cihlová
- Zastavěná plocha:
231 m2
- Podlahová plocha:
255 m2
- Plocha parcely:
916 m2
- Bazén:
Ano
- Stav objektu:
Novostavba
- Voda:
dálkový vodovod
- Doprava:
MHD, autobus
- Topeni:
lokální plynové
- Odpad:
kanalizace
- Komunikace:
asfaltová
- Bezbariérový přístup:
Ano
- Energetická náročnost:
C - Úsporná
- Podle vyhlášky:
c. 78/2013 Sb.
- Ukazatel náročnosti:
42 kWh/m2
- Nabídky v okolí: