• Sledovat cenu
  •  

Zasílání upozornění emailem:

Pronájem RD, 242 m2 - Na Skalce 40, Popovičky, okr. Praha-východ

Cena: 55 000 Kč/měsíc
Stav:Volný
242 m2, cihlová, parcela 1182 m2
Popis: Klidné a pohodové rodinné bydlení i práce z domova, praktický, světlý, prostorný, samostatně stojící dům 277 m2, 6+kk s velkou terasou, obklopený kouzelnou zahra...dou 1182 m2. Situovaný v naprostém soukromí s výhledem do zeleně. S dvougaráží a dalším stáním pro čtyři auta na pozemku u vjezdu. Ideální i pro pár na homeoffice. Ulice Na Skalce, Praha - východ, obec Popovičky - 12 min autem na Opatov.

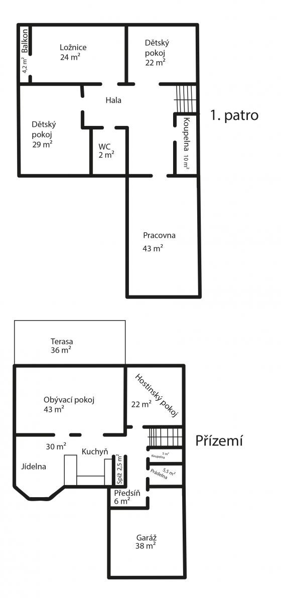
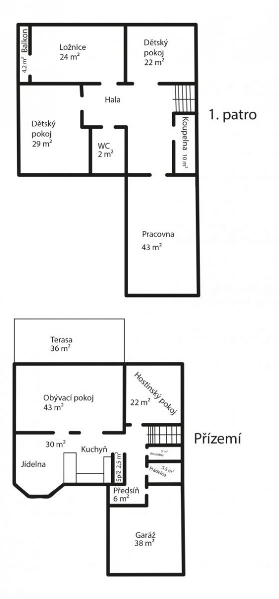
V přízemí domu velkorysý obývací pokoj (43m2) s krbem a přímým vstupem přes terasu do nádherné vzrostlé zahrady. Plně zařízená kuchyň moderními spotřebiči a přilehlou komorou, navazující prosvětlená jídelna. Pokoj pro hosty (21m2) s vestavěnými skříněmi, koupelna se sprchovým koutem a toaletou, prostorná technická místnost s oknem.

V patře domu tři ložnice: 2 dětské pokoje /pracovny (22, 30 m2) a ložnice rodičů (27m2) s balkonem a vestavěnými skříněmi. Dále prostorná (43m2) podkrovní místnost, vhodná jako domácí kancelář, dětská herna, další ložnice atp. Prosvětlená hlavní koupelna s vanou i sprchovými koutem. Toaleta je umístěna zvlášť.

Podkroví domu (38m2)je možno využít jako velký praktický úložný prostor.
Dvougaráž (37, 5 m2) v přízemí domu je, stejně jako vjezd na pozemek, na dálkové ovládání. Garáž částečně vybavena jako dílna.

Dům je ve výborném a čistém stavu, revize všech zařízení, plastová okna s elektronicky ovládanými roletami a moskytiérami ve většině oken. Dubové parketová podlaha, zaizolovaná střecha, alarm, plynový kotel v domě na ohřev vody a vytápění domu. Na zahradě vybudovaná studna.

Oblíbený Parkhotel Popovičky s vyhlášenou pekárnou, skvělou restaurací, tenisovými kurty a wellness je 3 min pěšky od domu. Velké dětské hřiště po všechny věkové kategorie 4 min pěšky. Park s rybníkem 2 minuty od domu, v okolí mnoho procházkových i cyklo tras. Autobus na Opatov 35 minut, autem do OC Chodov 15 min, obchodní zóna Čestlice 5 min, do Říčan 8 min, do Průhonického parku 5 min, Sunny Canadian International School 7 min, Prague British International School 18 min.

Nájem 55. 000, - CZK / měsíc + záloha na elektřinu, plyn, vodu, odpadky + internetové připojení 11. 000, - CZK / měsíc. Základní příspěvek na údržbu zahrady cca 20. 000, - CZK /rok.
Kauce dva měsíční nájmy se službami.

K dispozici od 1. 6. 2026, pouze k dlouhodobému pronájmu.





  • Vložení inzerátu:
    11.3.2026
  • Kód:
    NaSkalce
  • Typ nemovitosti:
    Rodinný dům
  • Typ budovy:
    Cihlová
  • Zastavěná plocha:
    200 m2
  • Podlahová plocha:
    242 m2
  • Plocha parcely:
    1182 m2
  • Balkón:
    Ano
  • Terasa:
    36 m2
  • Stav objektu:
    Velmi dobrý
  • Telekomunikace:
    Internet
  • Voda:
    dálkový vodovod
  • Doprava:
    autobus
  • Topeni:
    lokální plynové
  • Plyn:
    plynovod
  • Odpad:
    kanalizace
  • Bezbariérový přístup:
    Ano
  • Nabídky v okolí:
  • Informace o obci:
    Obec Popovičky má 305 obyvatel, z toho 212 v produktivním věku.
    V obci je rozvod kanalizace.
    V obci je rozvod městské vody.
    V obci je rozvod plynu.
Lokalita: Na Skalce 40, Popovičky, okres Praha-východ, Česká republika Na Skalce 40, Popovičky, okr. Praha-východ

Kontakt

Lucie Young



  • Objednání prohlídky a více informací
  •  
  • Poslat na e-mail
  •  

Zasílání odkazu na realitu emailem: