• Sledovat cenu
  •  

Zasílání upozornění emailem:

Pronájem RD, 180 m2 - Akátová 164, Strašín, Říčany, okr. Praha-východ (již není v nabídce)

Cena: 25 000 Kč/měsíc
Stav:archiv
180 m2, cihlová, parcela 872 m2
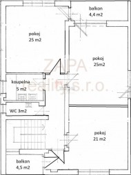
Popis: Exkluzivně nabízíme k pronájmu samostatně stojící podsklepený rodinný dům o velikost 5+1+2 krát balkon + terasa se zahradou v Říčanech u Prahy, ul. Akátová, zhruba 20 km jihovýchod...ně od centra Prahy. Dům byl kolaudován v roce 1993 a má celkovou obytnou plochu 180 m2 + terasa (6, 45m2)+balkon 1 (4, 5m2)+balkon2 (10, 87m2)+garáž (18, 27m2). Dispozice: v přízemí je obývací pokoj 30, 8m2 s přímým vstupem na zastřešenou terasu a zahradu o velikosti 809 m2, kuchyň (20m2) se spíží (2, 7m2) volně propojená s obývacím pokojem, chodba (9, 84m2), koupelna s vanou (6m2) a samostatné sociální zařízení WC s umyvadlem (3m2). Všechny místnosti v přízemí jsou se samostatným vchodem. V prvním patře jsou 3 samostatné neprůchozí místnosti ( 27m2 + 23m2 + 25m2), samostatná koupelna s vanou( 5, 1m2) a samostatné sociální zařízení WC (2, 84m2) a chodba (7, 9m2) a 2 balkony. Dům je celý podsklepený, sklepy jsou suché o celkové vel. 86 m2 se vstupem ze zahrady nebo přímo z chodby domu. Dům je nezařízený, z vybavení kuchyňská linka včetně spotřebičů (myčka, elektrický sporák), po dohodě lze ponechat vybavení po bývalém nájemci. Na podlahách je v přízemí dlažba, v podkroví v místnostech koberce (dle dohody možné odstranit) nebo lakovaná dřevotříska, na chodbě, v koupelně a sociální zařízení WC dlažba. Topení etážové - plynové (v přízemí v kuchyni a v obývacím pokoji podlahové vytápění). Dům je vymalovaný, čistý, s jihovýchodní a severozápadní orientací, parkování pro 2 vozidla je možné v garáži nebo před garáží na zastřešeném stání, jinak lze bezproblémově parkovat před dome v ulici. Na zahradě je nefunkční bazén, který momentálně slouží pouze jako nádrž na dešťovou vodu pro zalévání zahrady. Dům se nachází v klidné a tiché části obce, 15 minut chůzí od vlakového nádraží, v pěší dostupnosti je veškerá občanská vybavenost - základní i střední školy, školky, obchody a služby. Dům je ve výborné dostupnosti do Prahy: automobilem a autobusem (cca 10 - 15min na metro trasa C - Háje, trasa A - Strašnická) nebo vlakem (cca 30min na metro trasa C - Hlavní nádraží). Dům je vhodný pro pár nebo rodinu s většími dětmi (s ohledem na bezpečí kvůli nezajištěného bazénu) a je volný okamžitě. Nájemné činí 25. 000, - Kč+poplatky cca 5. 000, - Kč (včetně spotřeby vody, plynu a elektřiny)+ kauce ve výši 1 měsíčního nájmů. V případě zájmu o prohlídku nás neváhejte kontaktovat. Provize je 50% z nájmu bez poplatků.
  • Vložení inzerátu:
    25.9.2018
  • Kód:
    ZR650
  • Typ nemovitosti:
    Rodinný dům
  • Typ budovy:
    Cihlová
  • Zastavěná plocha:
    163 m2
  • Podlahová plocha:
    180 m2
  • Plocha parcely:
    872 m2
  • Balkón:
    Ano
  • Terasa:
    Ano
  • Sklep:
    Ano
  • Stav objektu:
    Velmi dobrý
  • Telekomunikace:
    Telefon, Internet
  • Topeni:
    ústřední plynové
  • Komunikace:
    asfaltová
  • Bezbariérový přístup:
    Ano
  • Nabídky v okolí:

Podobné nabídky v okolí

Lokalita: Akátová 164, Strašín, Říčany, okres Praha-východ, Česká republika Akátová 164, Strašín, Říčany, okr. Praha-východ