• Sledovat cenu
  •  

Zasílání upozornění emailem:

Pronájem RD, 164 m2 - K lipinám, Praha (již není v nabídce)

Cena: 35 000 Kč/měsíc
Stav:archiv
164 m2, cihlová, parcela 689 m2
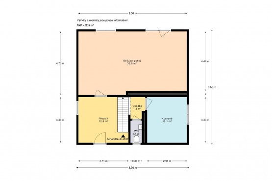
Popis: Exkluzivně nabízím k pronájmu samostatně stojící rodinný dům se zahradou (406m2) o dispozici 4+1/balkón/sklep/garáž/zastřešené parkovací stání o celkové ploše 172. 2m2<.../sup> (dům 122. 3m2 + lodžie 8. 3m2 + sklep 17. 8m2 + garáž 23. 8m2) v klidné vilové zástavbě v ulici K lipinám, Praha 4 - Modřany, která je obklopena zelení (v těsné blízkosti přírodních parků v Modřanech - Na Beránku, Baba atd. ) s maximálním propojením s přírodou (4 chráněná přírodní území) a možností aktivní relaxace (systém cyklostezek, golf, tenis, vodní sporty, procházky po nábřeží Vltavy), kompletní vybaveností (včetně několika mezinárodních škol, např. The Prague British School, Montessori školka atd. )

Přízemí: sestává se z prostorného obývacího pokoje s krbem a vstupem na zahradu, samostatné kuchyně s vestavěnými spotřebiči (indukční sklokeramická deska, myčka, elektrická trouba, lednice s mrazákem, filtrová digestoř), předsíně se schodištěm do 1. patra a samostatná toalety.

1. patro: sestává se ze vstupní chodby, ložnice, 2 samostatných pokojů se vstupy na balkón s jedinečným výhledem do okolí, koupeny s vanou, sprchovým koutem, toaletou a bidetem.

Půda: využití pro skladování sezónních věcí

Bezpečnostní zařízení v domě: možnost napojení na pult centrální ochrany. Podlahové vytápění ve všech místnostech.

Nájem: 35. 000, - Kč, elektřina: 7. 000, - Kč, voda: 500, - Kč (1. osoba), popelnice: 750, - Kč 1/2 rok, jistota (kauce): 35. 000, - Kč, provize zprostředkovatele: 35. 000. - Kč.

Volné: dle dohody

Pro více informací či sjednání prohlídky neváhejte kontaktovat makléře nemovitosti.

Ukazatel energetické náročnosti: G* (PENB není k dispozici. Pokud bude dodán, bude údaj aktualizován).
  • Vložení inzerátu:
    10.3.2025
  • Kód:
    00318
  • K dispozici od:
    0.0.0
  • Typ nemovitosti:
    Rodinný dům
  • Typ budovy:
    Cihlová
  • Zastavěná plocha:
    283 m2
  • Podlahová plocha:
    164 m2
  • Plocha parcely:
    689 m2
  • Balkón:
    8 m2
  • Sklep:
    18 m2
  • Stav objektu:
    Velmi dobrý
  • Umístění objektu:
    Klidná část
  • Telekomunikace:
    Internet, Kabelové rozvody
  • Voda:
    dálkový vodovod
  • Elektřina:
    230 V
  • Doprava:
    silnice, MHD, autobus
  • Odpad:
    kanalizace
  • Komunikace:
    asfaltová
  • Energetická náročnost:
    G - Mimořádne nehospodárná
  • Nabídky v okolí:
  • Informace o obci:
    Obec Praha má 1257158 obyvatel, z toho 889974 v produktivním věku.
    V obci se nachází pošta.
    V obci se nachází škola, popř. školka.
    V obci se nachází zdravotní zařízení.
    V obci je rozvod kanalizace.
    V obci je rozvod městské vody.
    V obci je rozvod plynu.

Podobné nabídky v okolí

Lokalita: K lipinám , Praha, Česká republika K lipinám, Praha