• Sledovat cenu
  •  

Zasílání upozornění emailem:

Pronájem RD, 142 m2 - U Lípy 153, Spojil, okr. Pardubice

Cena: 29 000 Kč/měsíc
Stav:Volný
142 m2, cihlová, parcela 146 m2
Popis: Dobrý den, máte rádi komfort bytu, ale přímo byt Vám nevyhovuje. Dům se zahradou také není úplně to pravé? Co by jste řekli na kompromis mezi bytem a domem, kterým je řadový dům?
Pokud Vás tato myšlenka oslovuje, dovolt...e mi, abych Vám představil nabídku, která se nám právě uvolnila k pronájmu.

Jedná se o pronájem světlého řadového rodinného domu, který se nachází v obci Spojil. Spojil je velice příjemné místo k bydlení, které nabídne klid a pohodu, ale zároveň dobré spojení s Pardubicemi (autem 15 minut do centra, pravidelné spojení MHD, pěší stezka na Dubinu).

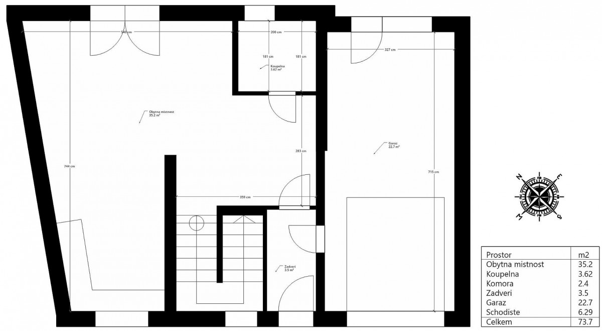
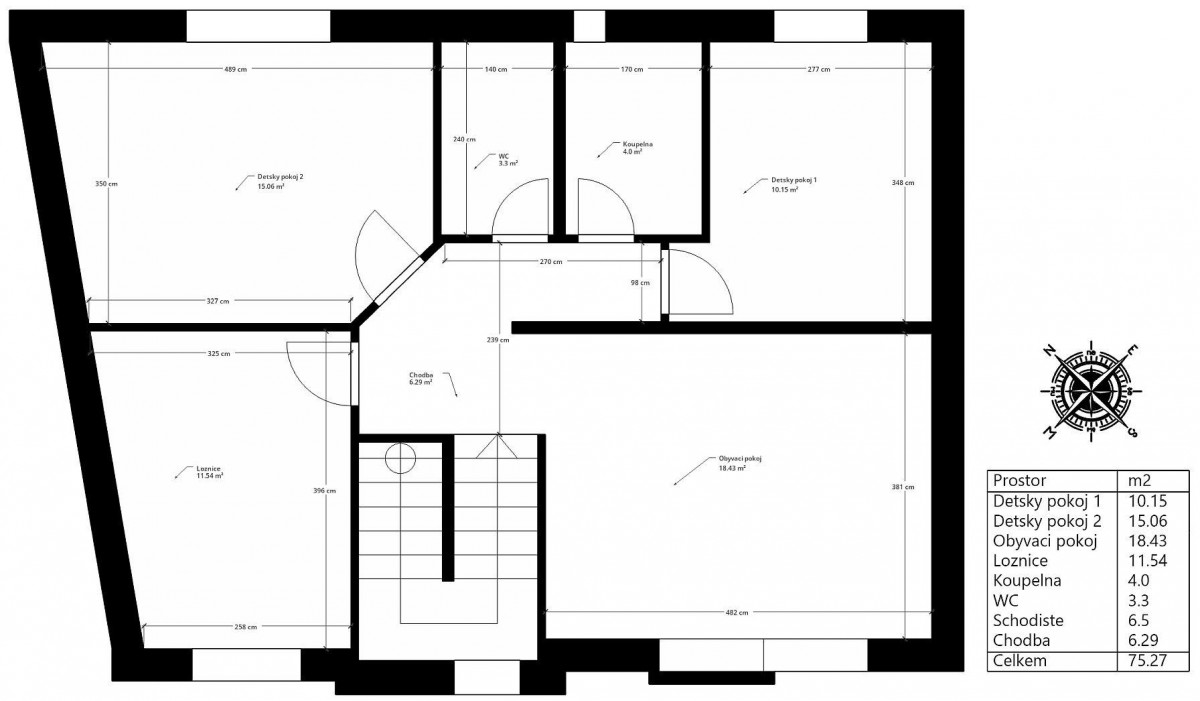
Dům o dispozici 5+kk je řešený jako dvoupodlažní, kdy v 1. NP (první nadzemní patro) se nachází hlavní vstup (zádveří), koupelna se sprchovým koutem a sociální zařízení WC, jídelna a kuchyňský kout. Z prostoru jídelny je možné francouzským oknem vstoupit na vlastní zahrádku/ terasu o výměře 45 m2. Na zahrádku je možný také vstup přes garáž. V 2. NP (druhé nadzemní patro) se nachází obývací pokoj, koupelna s rohovou vanou, sociální zařízení WC, ložnice a dva dětské pokoje. V kuchyňském koutu a koupelně v 2. NP (druhé nadzemní patro) je podlahové topení. Na podlahách domu je dlažba, vinyl, dřevěná podlaha a antialergenní korek. Vytápění domu je řešeno kondenzačním plynovým kotlem s pravidelnou revizí.

Součástí nájmu je zařízení kuchyňské linky s vestavnou elektrickou troubou a mikrovlnnou troubou, myčkou nádobí, lednicí s mrazákem, indukční varnou deskou. Dále je k dispozici šatní skříň v ložnici a 2 krát LCD televize. Užitná plocha domu činí 142 m2 včetně garáže (24 m2). Je zde možnost parkovat až 3 osobní vozy, 1 v garáži a 2 před domem.

Výše měsíčního nájmu činí 29. 000, - Kč + zálohy na energie (voda, plyn, elektrická energie, celkem cca 5. 000 Kč). Jistota (vratná kauce) je ve výši 60. 000 Kč, provize RK 25. 000 Kč. Dům je k nastěhování od 1. 2. 2026.

Závěrem bych Vás chtěl pozvat na prohlídku, abyste mohli osobně posoudit, zda - li tento kompromis mezi bytem a typickým domem bude vyhovovat i Vám. Děkuji Václav Růžička realitní specialista.

Pronajímatel si vyhrazuje právo vybrat nájemce na základě jím zvolených kritérií.
  • Vložení inzerátu:
    6.1.2026
  • Kód:
    XA-270
  • Typ nemovitosti:
    Rodinný dům
  • Typ budovy:
    Cihlová
  • Zastavěná plocha:
    87 m2
  • Podlahová plocha:
    142 m2
  • Plocha parcely:
    146 m2
  • Stav objektu:
    Velmi dobrý
  • Telekomunikace:
    Internet
  • Voda:
    dálkový vodovod
  • Elektřina:
    230 V
  • Doprava:
    MHD
  • Topeni:
    lokální plynové
  • Odpad:
    kanalizace
  • Komunikace:
    asfaltová
  • Bezbariérový přístup:
    Ano
  • Energetická náročnost:
    G - Mimořádne nehospodárná
  • Nabídky v okolí:
  • Informace o obci:
    Obec Spojil má 447 obyvatel, z toho 319 v produktivním věku.
    V obci je rozvod kanalizace.
    V obci je rozvod městské vody.
    V obci je rozvod plynu.
Lokalita: U Lípy 153, Spojil, okres Pardubice, Česká republika U Lípy 153, Spojil, okr. Pardubice

Kontakt




  • Objednání prohlídky a více informací
  •  
  • Poslat na e-mail
  •  

Zasílání odkazu na realitu emailem: