Pronájem RD, 130 m2 - Vratimovská, Vratimov, okr. Ostrava-město
            
            
                
  Cena:
          33 000 Kč/měsíc
    
          Stav:Volný
    
   
     
         
         
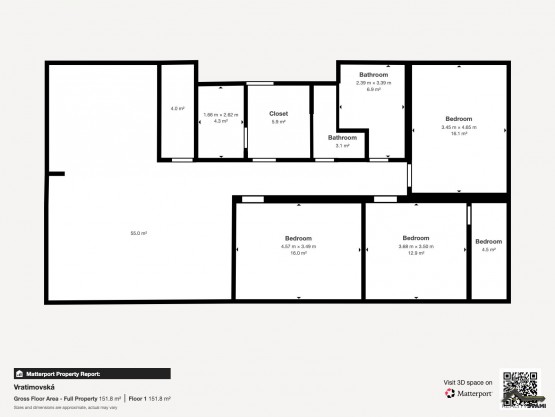
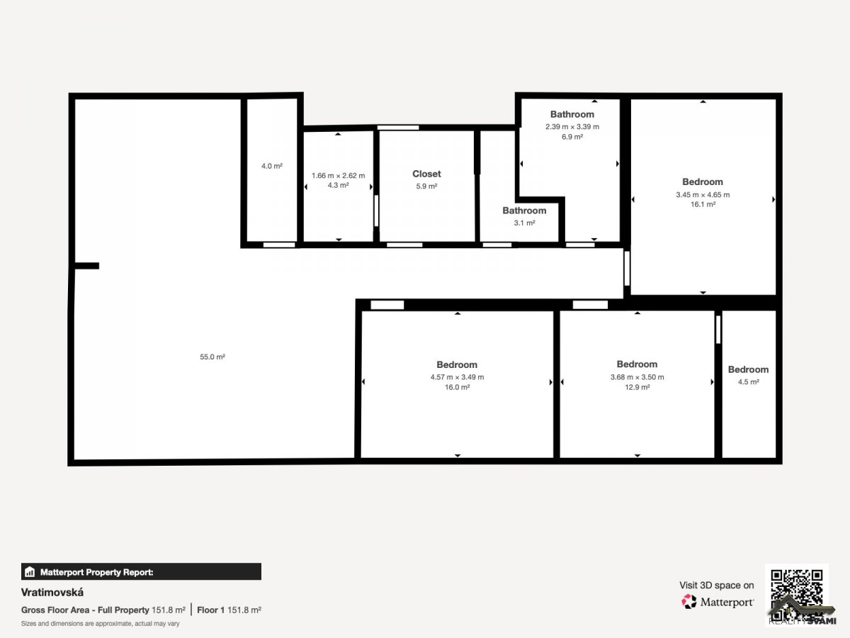
         130 m2, cihlová, parcela 909 m2      
        
        Popis:
      
                      Prostor pro bydlení,  odpočinek,  relax a pohodu? A navíc v novostavbě,  kde ještě nikdo nebydlel? 
Ano,  to vše  a navíc i možnost budoucího odkupu nabízí tato novostavba rodinného domu ...t">4+kk s terasou a suchým stáním.  Dům je o obytné ploše cca 130 m2 a skládá se ze 3 samostatných pokojů,  obývacího pokoje,  spojeného s kuchyňským koutem,  dvěma samostatnými koupelnami,  spojenýma s sociální zařízení WC,  kde v jedné je umístěný sprchovací kout a ve druhé vana.  Každý s pokojů navíc disponuje vestavěnou skříní a ze dvou samostatných,  plus obývacího pokoje se dále dostanete na terasu.  V domě nechybí ani předsíň,  opět se skříní a technická místnost.  
Komfort bydlení navíc zvyšuje vodní podlahové topení,  kdy toto je napojenu na tepelné čerpadlo,  které navíc pomocí zásobníku ohřívá i vodu.  Každá místnost má dále svou klimatizační jednotku,  ale to není vše.  Je možné použít pro topení i krbová kamna,  která mají výdechy do každé z místností,  včetně koupelen a tím zajišťují vytápění.  
Nemovitost má základní vybavení,  jako je kuchyňská linka s vestavěným i spotřebiči,  ale i nadstandardní venkovní žaluzie na el.  ovládání.  
Dům bude k nastěhování od 1. 11.  kdy bude již s číslem popisným,  jelikož právě doběhla kolaudace.  V ceně pronájmu bude i skončení venkovních terénních úprav a oplocení.  
Pro více informací mě neváhejte kontaktovat.  
Nájem 33000,  - ,  služby 6000,  -  měsíčně.  Vratná kauce 2 měsíční nájmy,  plus provize RK. 
           
          
    - Vložení inzerátu:30.10.2025  
- Kód:00614  
- K dispozici od:0.0.0  
- Typ nemovitosti:Rodinný dům  
- Typ budovy:Cihlová  
- Podlahová plocha:130 m2 
- Plocha parcely:909 m2 
- Terasa:Ano 
- Stav objektu:Novostavba  
- Umístění objektu:Okraj  
- Voda:dálkový vodovod  
- Elektřina:230 V  
- Doprava:silnice, MHD, autobus  
- Topeni:ústřední elektrické  
- Odpad:kanalizace  
- Komunikace:asfaltová  
- Energetická náročnost:B - Velmi úsporná  
- Podle vyhlášky:c. 78/2013 Sb.  
- Ukazatel náročnosti:68 kWh/m2 
- Nabídky v okolí:
- Informace o obci:Obec Vratimov má 6902 obyvatel, z toho 4727 v produktivním věku.
 V obci se nachází pošta.
 V obci se nachází škola, popř. školka.
 V obci se nachází zdravotní zařízení.
 V obci je rozvod kanalizace.
 V obci je rozvod městské vody.
 V obci je rozvod plynu.
 
 
 
    Lokalita:
    
        Vratimovská , Vratimov, okres Ostrava-město, Česká republika
        
                                                                                                                                                                                                                                                         Vratimovská, Vratimov, okr. Ostrava-město