• Sledovat cenu
  •  

Zasílání upozornění emailem:

Pronájem RD, 120 m2 - U Šumavěnky, Praha 4, Modřany, Praha (již není v nabídce)

Cena: 27 000 Kč/měsíc
Stav:archiv
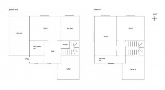
120 m2, cihlová, parcela 600 m2
Popis: Nabízíme k pronájmu moc hezký světlý rodinný dům o dispozici 3+1 o rozloze 120 m2. RD (rodinný dům) se nachází v klidné a příjemné lokalitě Prahy 4 v Modřanech, ulice U Šu...mavěnky. Moderní kuchyně kompletně vybavena - lednice s mrazákem, myčka, digestoř, trouba, keramická elektrická deska. V domě jsou dvě koupelny. K dispozici je také pračka.
Plovoucí podlaha, dlažba, vše je podsklepeno. Dostatek úložného prostoru - v domě je cca 20m2 skladovacích prostor (dílna/sklad). Garáž pro jedno auto - elektrická brána na dálkové ovládání.
Útulné bydlení v klidné a příjemné lokalitě plné zeleně. Krásný výhled na Strahov a Barrandov.
Kompletní občanská vybavenost a skvělá dopravní dostupnost. Nedaleko obchodní centrum.

Podobné nabídky v okolí

Lokalita: U Šumavěnky , Praha 4, Modřany, Praha, Česká republika U Šumavěnky, Praha 4, Modřany, Praha