• Sledovat cenu
  •  

Zasílání upozornění emailem:

Pronájem RD, 120 m2 - U Hájovny, Mělník (již není v nabídce)

Cena: 25 000 Kč/měsíc
Stav:archiv
120 m2, cihlová, parcela 874 m2
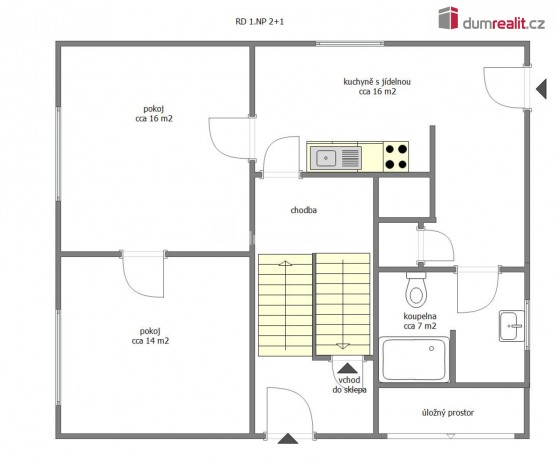
Popis: plus záloha na vodu 1500, - Kč a přepis plynu a elektřiny na nájemníka. . možný pronájem rodinného domu ve vyhledávané lokalitě Mělník Chloumek. Jde o podsklepený RD (rodinný dům), dvou patrový s garáží, dílnou a zahrad...ou. V 1. NP (první nadzemní patro) je bytová jednotka 2+1 s koupelnou se sprchovým koutem a sociální zařízení WC, kuchyňskou linkou s jídelnou, z které lze vyjít na zahradu. V 2. NP (druhé nadzemní patro) jsou pak tři pokoje, z nichž jeden má přípravu pro kuchyňskou linku. Dále pak samostatná koupelna s vanou a samostatné sociální zařízení WC. Dále se zde nachází dva úložné prostory pod šikminou střechy, které jsou uzavřené dveřmi. Garáž na pozemku obsahuje jámu na případné opravy vozu a je spojena vchodem do menší dílny, kterou lze vytápět malými kamny, sporákem. Garáž má plechová vrata. Dům z roku 1961 prošel rekonstrukcí v roce 1992, kdy došlo k zateplení stěn a v roce 2024 pak k rekonstrukci koupelny, sociální zařízení WC, kuchyně, podlah, střechy včetně okapů. V témže roce byl nainstalován nový plynový kondenzační kotel, který vytápí celý dům prostřednictvím ústředního topení. Vodu ohřívá v každém patře samostatný el. bojler. Dříve se v domě topilo kotlem na tuhá paliva. Z tohoto důvodu nelze sdělit, kolik se v domě protopí plynem. Dům je napojen na kanalizaci. Okna jsou původní špaletová. Celý pozemek je oplocen a vjezd na pozemek je opatřen vraty. Nájemné činí 25. 000, - Kč, kauce 50. 000, - Kč, záloha na vodu 1. 500, - Kč. Elektřina a plyn budou přepsány na nájemníka. Majitel požaduje využívat nemovitost v souladu s jejím charakterem, tedy jako bydlení v rodinném domě. Dále si vyhrazuje právo výběru výhodnější nabídky. Pro bližší informace volejte makléře. Ev. číslo: 649098. Energetický štítek: G
  • Vložení inzerátu:
    19.11.2024
  • Kód:
    3886748
  • Typ nemovitosti:
    Rodinný dům
  • Typ budovy:
    Cihlová
  • Zastavěná plocha:
    90 m2
  • Podlahová plocha:
    120 m2
  • Plocha parcely:
    874 m2
  • Sklep:
    Ano
  • Stav objektu:
    Velmi dobrý
  • Umístění objektu:
    Klidná část
  • Energetická náročnost:
    G - Mimořádne nehospodárná
  • Nabídky v okolí:
  • Informace o obci:
    Obec Mělník má 19225 obyvatel, z toho 13364 v produktivním věku.
    V obci se nachází pošta.
    V obci se nachází škola, popř. školka.
    V obci se nachází zdravotní zařízení.
    V obci je rozvod kanalizace.
    V obci je rozvod městské vody.
    V obci je rozvod plynu.

Podobné nabídky v okolí

Lokalita: U Hájovny , Mělník, okres Mělník, Česká republika U Hájovny, Mělník