• Sledovat cenu
  •  

Zasílání upozornění emailem:

Pronájem RD, 119 m2 - U Lípy 153, Spojil, okr. Pardubice (již není v nabídce)

Cena: 21 000 Kč/měsíc
Stav:archiv
119 m2, cihlová, parcela 146 m2
Popis: Dobrý den, máte rádi komfort bytu, ale přímo byt Vám nevyhovuje. Dům se zahradou také není úplně to pravé? Co by jste řekli na kompromis mezi bytem a domem, kterým je řadový dům?
Pokud Vás tato myšlenka oslovuje, dovolt...e mi, abych Vám představil nabídku. Jedná se o pronájem světlého nadstandardního řadového rodinného domu, který se nachází v obci Spojil. Spojil je velice příjemné místo k bydlení, které nabídne klid a pohodu, ale zároveň dobré spojení s Pardubicemi (autem 15 minut do centra, pravidelné spojení MHD, pěší stezka na Dubinu).
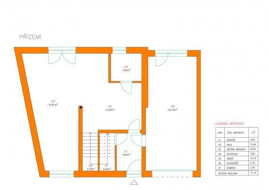
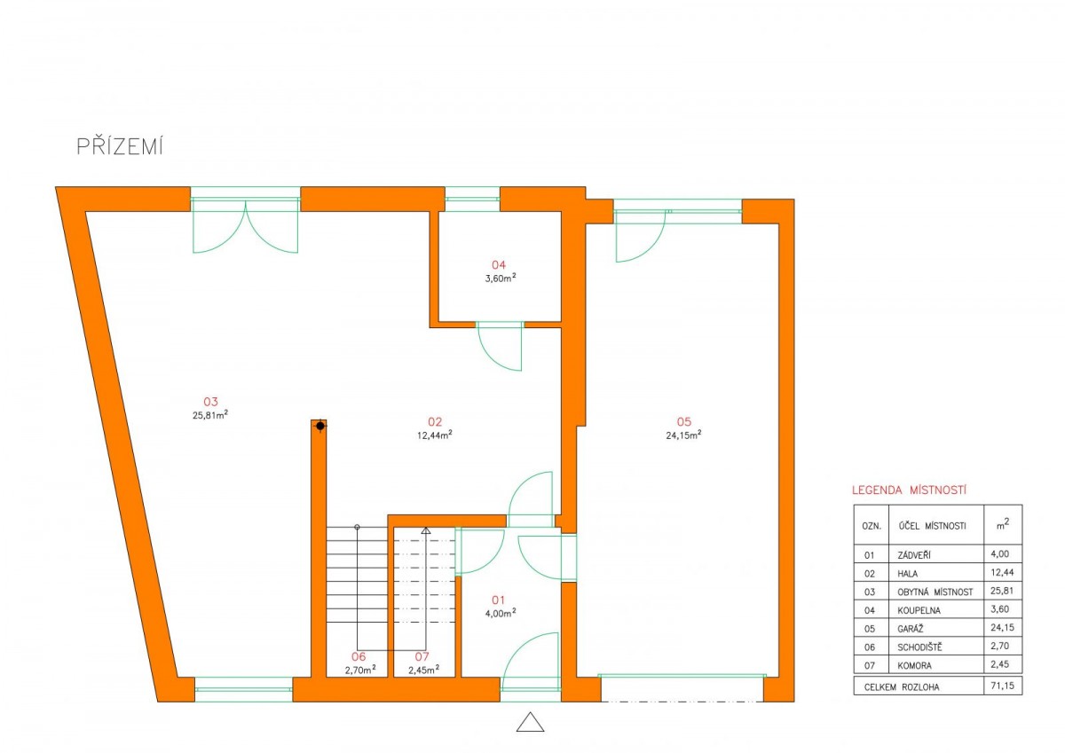
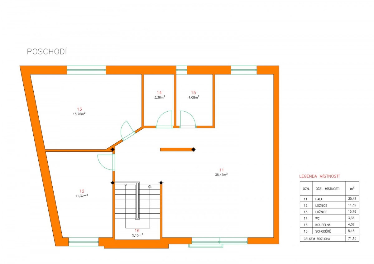
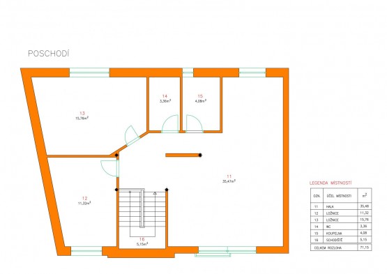
Dům je řešený jako dvoupodlažní, kdy v 1. NP (první nadzemní patro) se nachází hlavní vstup (zádveří), koupelna se sprchovým koutem a sociální zařízení WC, jídelna a kuchyňský kout. Z prostoru jídelny je možné francouzským oknem vstoupit na vlastní zahrádku o výměře 45 m2, jejíž údržba Vás nebude stát velké úsilí. Na zahrádku je možný také vstup přes garáž. V 2. NP (druhé nadzemní patro) se nachází obývací pokoj s pracovním koutem, koupelna s rohovou vanou, sociální zařízení WC, ložnice a dětský pokoj. V kuchyňském koutu a koupelně v 2. NP (druhé nadzemní patro) je podlahové topení. Na podlahách domu je dlažba, dřevěná podlaha a antialergenní korek. Dveře jsou vyrobené z masivu včetně dveřních obložek. Vytápění domu je řešeno kondenzačním plynovým kotlem s pravidelnou revizí. Součástí nájmu je zařízení kuchyňské linky s vestavnou elektrickou troubou a mikrovlnnou troubou, myčkou nádobí, lednicí s mrazákem, indukční varnou deskou. Dále zůstává jídelní stůl, televize LCD v jídelně, pračka s bočním plněním, šatní skříň v ložnici a LCD televize. V domě je připojení k internetové připojeníu, satelit, televizní anténa. Užitná plocha domu činní 142 m2 včetně garáže (22, 7 m2). Je zde možnost parkovat až 3 auta, 1 v garáži a 2 před domem.
Výše měsíčního nájmu činí 21. 000, - Kč + zálohy na energie (voda, plyn, elektrická energie, celkem cca 3. 500, - Kč). Jistota (vratná kauce) je ve výši 40. 000, - Kč, provize RK 21. 000, - Kč včetně DPH. Dům je ihned k nastěhování. Závěrem bych Vás chtěl pozvat na prohlídku, abyste mohli osobně posoudit, zda - li tento kompromis mezi bytem a typickým domem bude vyhovovat i Vám. Děkuji Václav Růžička realitní specialista

Pronajímatel si vyhrazuje právo vybrat nájemce na základě jím zvolených kritérií.
  • Vložení inzerátu:
    1.10.2020
  • Kód:
    XA-270
  • Typ nemovitosti:
    Rodinný dům
  • Typ budovy:
    Cihlová
  • Zastavěná plocha:
    87 m2
  • Podlahová plocha:
    119 m2
  • Plocha parcely:
    146 m2
  • Stav objektu:
    Novostavba
  • Telekomunikace:
    Internet, Satelit, Kabelová televize
  • Voda:
    dálkový vodovod
  • Elektřina:
    230 V
  • Doprava:
    MHD
  • Topeni:
    lokální plynové
  • Plyn:
    plynovod
  • Odpad:
    kanalizace
  • Komunikace:
    asfaltová
  • Bezbariérový přístup:
    Ano
  • Energetická náročnost:
    G - Mimořádne nehospodárná
  • Nabídky v okolí:
  • Informace o obci:
    Obec Spojil má 447 obyvatel, z toho 319 v produktivním věku.
    V obci je rozvod kanalizace.
    V obci je rozvod městské vody.
    V obci je rozvod plynu.

Podobné nabídky v okolí

Lokalita: U Lípy 153, Spojil, okres Pardubice, Česká republika U Lípy 153, Spojil, okr. Pardubice