Pronájem RD, 110 m2 - Balbínova 545, Petřkovice, Ostrava, okr. Ostrava-město (již není v nabídce)
Cena:
17 000 Kč/měsíc
Stav:archiv
110 m2, cihlová, parcela 832 m2
Popis:
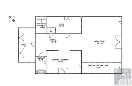
Pronájem samostatné části rodinného domu ve 2 NP o velikosti 3, 5+1 o celkové výměře 110 m2 s prostornou předsíni. Dům po kompletní rekonstrukci bez nábytku, součástí jsou... vestavěné spotřebiče v kuchyni, lednice. . . K domu náleží garáž a parkovací stání, sklepní prostory s prádelnou a pračkou, aktuálně dokončená rekonstrukce koupelny v 2 NP. Na zahradě k využití zahradní domek, který je podsklepen. V okolí veškerá občanská vybavenost s výbornou dostupností. Krásný dům s panoramatem Ostravy, doporučujeme prohlídku. Jelikož od majitele domu nemáme k dispozici energetický štítek náročnosti budovy, zákonná povinnosti nám nařizuje uvádět v inzerci energetickou náročnost budovy třídy G. K dispozici od 01. 12. 2021. Požadujeme bezdlužnost, čistý exekuční a insolvenční rejstřík.
- Vložení inzerátu:
11.8.2021
- Kód:
CR24291
- Typ nemovitosti:
Rodinný dům
- Typ budovy:
Cihlová
- Zastavěná plocha:
136 m2
- Podlahová plocha:
110 m2
- Plocha parcely:
832 m2
- Stav objektu:
Po rekonstrukci
- Telekomunikace:
Telefon, Internet, Satelit
- Voda:
dálkový vodovod
- Elektřina:
230 V, 380 V
- Doprava:
MHD, autobus
- Topeni:
ústřední plynové
- Plyn:
plynovod
- Odpad:
kanalizace
- Komunikace:
asfaltová
- Bezbariérový přístup:
Ano
- Energetická náročnost:
G - Mimořádne nehospodárná
- Podle vyhlášky:
c. 78/2013 Sb.
- Nabídky v okolí: