Pronájem obchodních prostor 80 m2 - Prokopa Velikého 260, Vítkovice, Ostrava, okr. Ostrava-město (již není v nabídce)
Cena:
10 600 Kč/měsíc
Stav:archiv
80 m2, cihlová
Popis:
Nabízíme k pronájmu nebytové prostory v Ostravě Vítkovicích. Dříve jako keramická dílna a prodejna keramických výrobků.
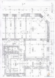
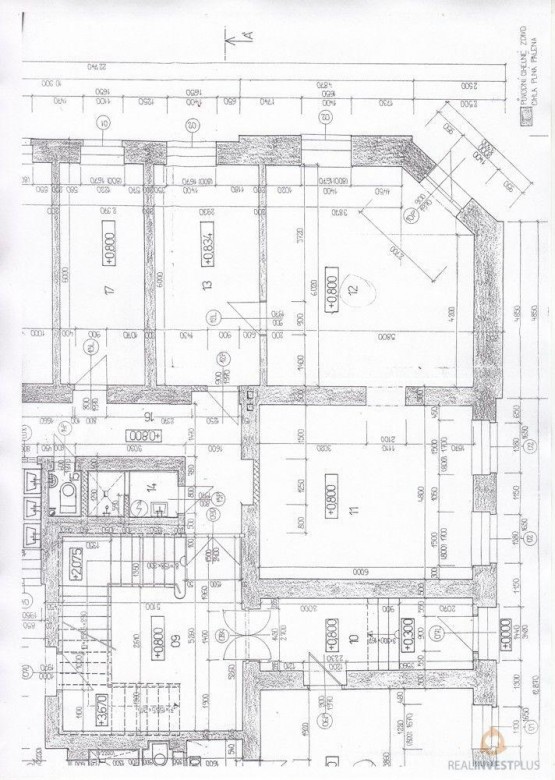
Obchodní prostory o celkové velikosti 80, 2 m2 se skládají z:
místnost 11 rozměr 6m x ...4, 8m=28, 8 m2
místnost 12 - rozměr 5, 8m x 6m šikmina 0, 8 m2= 34 m2
místnost 13 rozměr 6m x 2, 9m=17, 4 m2
Sociální zázemí místnosti 14 a 15
Cena za pronájem 10. 600, - Kč/měsíčně + energie, voda a odpady 3. 370, - Kč /měsíčně záloha nebo se můžou přepsat na nájemce.
Vratná kauce 25. 000Kč, odměna RK 10. 600Kč + DPH21%.
- Vložení inzerátu:
17.10.2022
- Kód:
474/3240
- Typ nemovitosti:
Obchodní prostory
- Typ budovy:
Cihlová
- Podlahová plocha:
80 m2
- Plocha parcely:
80 m2
- Stav objektu:
Dobrý
- Telekomunikace:
Internet
- Voda:
dálkový vodovod
- Elektřina:
230 V
- Doprava:
silnice, MHD, autobus
- Topeni:
ústřední plynové
- Plyn:
plynovod
- Odpad:
kanalizace
- Bezbariérový přístup:
Ano
- Nabídky v okolí: