• Sledovat cenu
  •  

Zasílání upozornění emailem:

Pronájem obchodních prostor 80 m2 - Mochovská 535, Praha (již není v nabídce)

Cena: 18 000 Kč/měsíc
Stav:archiv
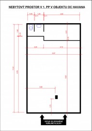
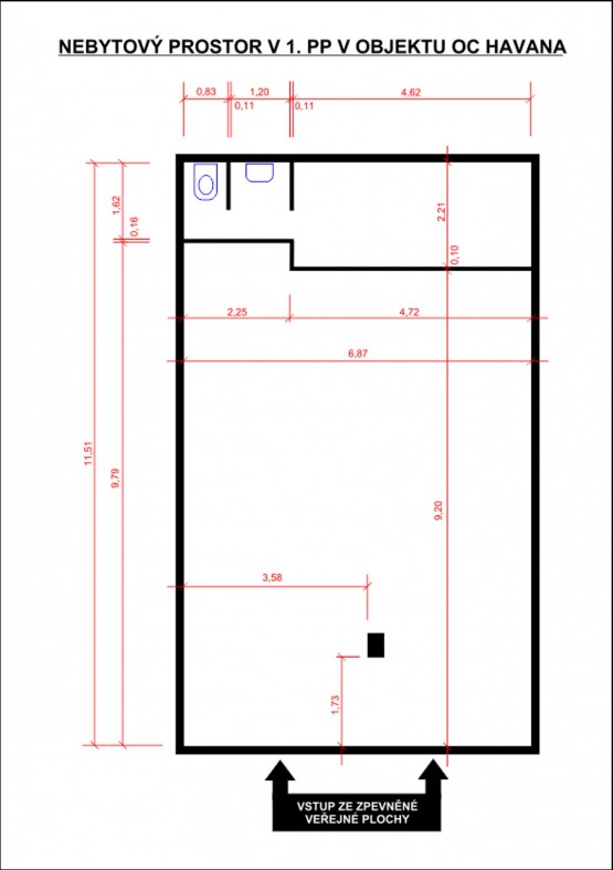
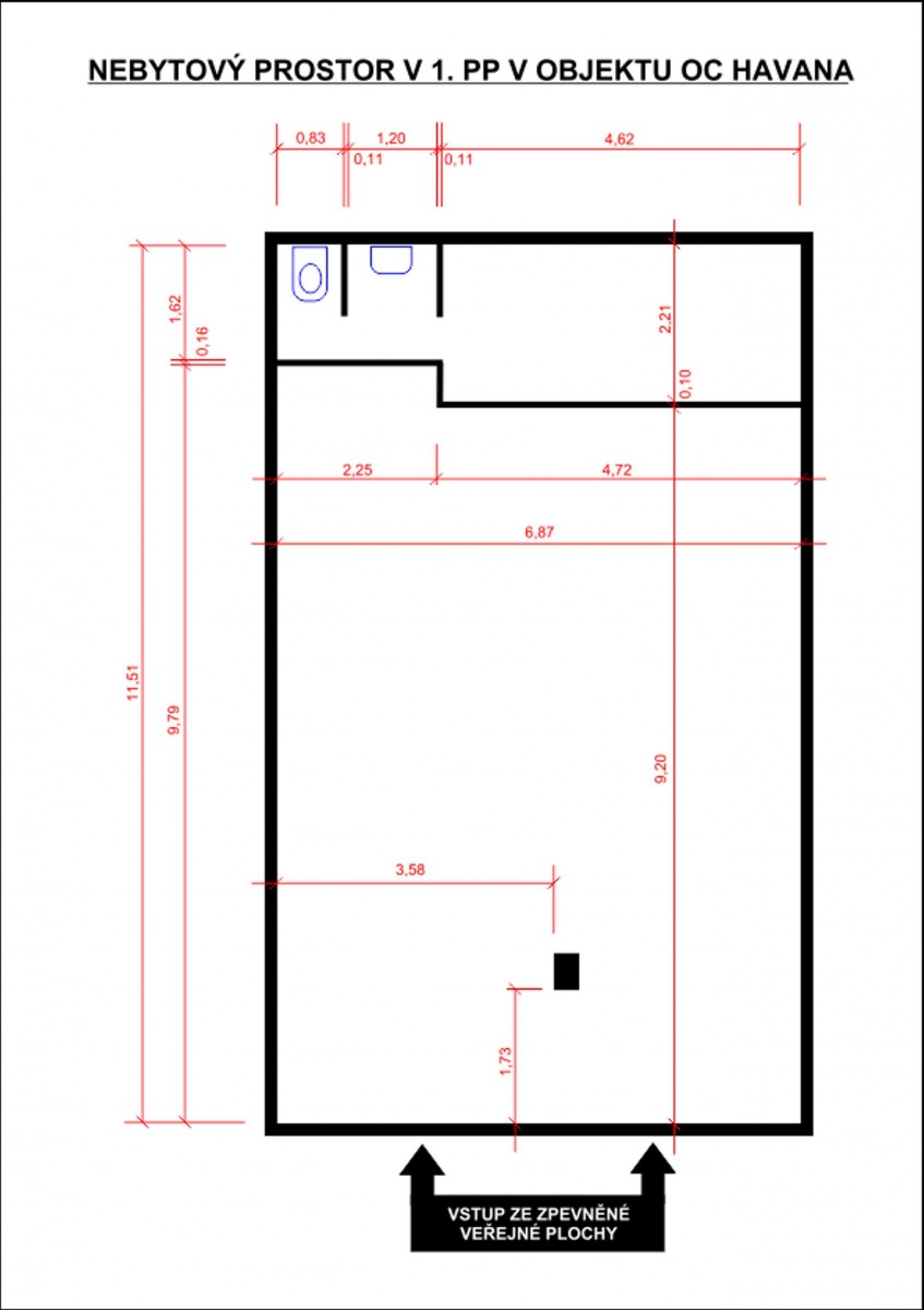
80 m2, skeletová
Popis: Nabízíme k pronájmu obchodní prostory o výměře 80 m2, umístěné v přízemí OC Havana, přímo u výstupu z metra trasy B, zastávka Hloubětín. Prostory jsou po kompletní rekonstrukci včetně zázemí. Dispozice - pro...dejna(kancelář), sklad, koupelna s umyvadlem a sociální zařízení WC(plánek ve fotogalerii). Vytápění ústřední+ vzduchotechnika, podlaha dlažba. Vchod z ulice(podloubí), výloha. Vhodné využití jako prodejna, kancelář, ordinace, vzorkovna apod. , nelze na gastroprovoz(restaurace, kavárna občerstvení apod. ) Cena je uvedena včetně služeb, které jsou účtovány paušálem(vytápění, elektřina, úklid, odvoz odpadu, voda a připojení wifi). Provize RK ve výší jednoho nájmu(18tis/kč). Volné ihned, výhodná poloha - doporučujeme.

Poznámka k ceně: cena je včetně poplatků, nájemné možno účtovat bez DPH(pro neplátce)
  • Vložení inzerátu:
    30.10.2018
  • Kód:
    2870569
  • Typ nemovitosti:
    Obchodní prostory
  • Typ budovy:
    Skeletová
  • Podlahová plocha:
    80 m2
  • Stav objektu:
    Po rekonstrukci
  • Umístění objektu:
    Centrum
  • Elektřina:
    230 V
  • Doprava:
    dálnice, silnice, MHD
  • Topeni:
    ústřední dálkové
  • Energetická náročnost:
    G - Mimořádne nehospodárná
  • Nabídky v okolí:
  • Informace o obci:
    Obec Praha má 1257158 obyvatel, z toho 889974 v produktivním věku.
    V obci se nachází pošta.
    V obci se nachází škola, popř. školka.
    V obci se nachází zdravotní zařízení.
    V obci je rozvod kanalizace.
    V obci je rozvod městské vody.
    V obci je rozvod plynu.

Podobné nabídky v okolí

Lokalita: Mochovská 535, Praha, Česká republika Mochovská 535, Praha