• Sledovat cenu
  •  

Zasílání upozornění emailem:

Pronájem obchodních prostor 49 m2 - Náměstí Dobrovského, Rumburk 1, Rumburk, okr. Děčín

Cena: 8 800 Kč/měsíc
Stav:Volný
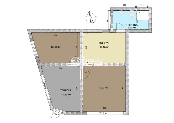
49 m2, cihlová
Popis: SKZ REALITY Rumburk nabízí pronájem nebytového prostoru vhodného pro obchod nebo kanceláře. V prostoru je zajištěno zázemí kuchyně, sociální zařízení WC a sprchový kout. Prostor sestává z kuchyně, koupelny s sociální zaří...zení WC, vstupní chodby + 2 místnosti. Místnosti do ulice mají velké skleněné výlohy. Prostor se nachází v přízemí domu v centru Rumburku. Vytápění je zajištěno ústředně s vlastním plynovým kotlem. Služby jako je elektřina a plyn platí nájemce přímo dodavatelům (podle předchozího nájemce cca 4000Kč). Vodné, stočné pronajimateli. Vratná kauce je ve výši 17 600Kč. Ohledně prohlídky nebo bližších informací nás kontaktujte prostřednictvím formuláře u inzerátu nebo volejte.
Lokalita: Náměstí Dobrovského , Rumburk 1, Rumburk, okres Děčín, Česká republika Náměstí Dobrovského, Rumburk 1, Rumburk, okr. Děčín

Kontakt

Mgr. Jaroslav Šmejc



  • Objednání prohlídky a více informací
  •  
  • Poslat na e-mail
  •  

Zasílání odkazu na realitu emailem: