• Sledovat cenu
  •  

Zasílání upozornění emailem:

Pronájem obchodních prostor 39 m2 - Kojetická, Neratovice, okr. Mělník

Cena: 250 Kč/m2/měsíc
Stav:Volný
39 m2, panelová
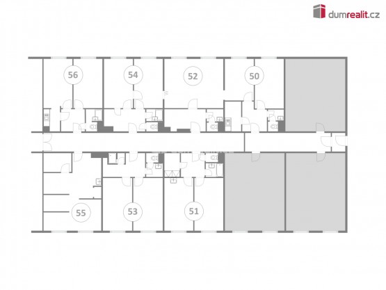
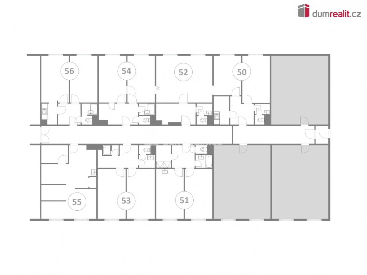
Popis: +zálohy na spotřeby energií dle ev. listu družstva. Dumrealit. cz Vám nabízí pronájem nebytových prostor k podnikání v Neratovicích, ul. Kojetická. Pronajímané prostory jsou v místě bývalé polikliniky - rehabilitace. Jed...ná se o sedm jednotek o velikosti 39m², je možné i pospojovat na 78m², resp. 117m². Provozovat zde lze profese zdravotního, kosmetického zaměření, tj. masáže, pedikura, manikura, kadeřnictví, solárium, popř. rehabilitačního cvičení. Rovněž zde lze otevřít účetní, advokátní nebo jinou kancelář. Více ionformací požadujte v RK. Ev. číslo: 651510. Energetický štítek: G
  • Vložení inzerátu:
    11.6.2025
  • Kód:
    3985355
  • Typ nemovitosti:
    Obchodní prostory
  • Typ budovy:
    Panelová
  • Zastavěná plocha:
    39 m2
  • Podlahová plocha:
    39 m2
  • Stav objektu:
    Velmi dobrý
  • Umístění objektu:
    Rušná část
  • Energetická náročnost:
    G - Mimořádne nehospodárná
  • Nabídky v okolí:
  • Informace o obci:
    Obec Neratovice má 16414 obyvatel, z toho 11914 v produktivním věku.
    V obci se nachází pošta.
    V obci se nachází škola, popř. školka.
    V obci se nachází zdravotní zařízení.
    V obci je rozvod kanalizace.
    V obci je rozvod městské vody.
    V obci je rozvod plynu.
Lokalita: Kojetická , Neratovice, okres Mělník, Česká republika Kojetická, Neratovice, okr. Mělník

Kontakt

Antonín Čvančara


Podobné nabídky v okolí


Volná pracovní místa ExpertPrace.cz
  • Objednání prohlídky a více informací
  •  
  • Poslat na e-mail
  •  

Zasílání odkazu na realitu emailem: