• Sledovat cenu
  •  

Zasílání upozornění emailem:

Pronájem obchodních prostor 244 m2 - Čáslavská 1, Chrudim (již není v nabídce)

Cena: 16 500 Kč/měsíc
Stav:archiv
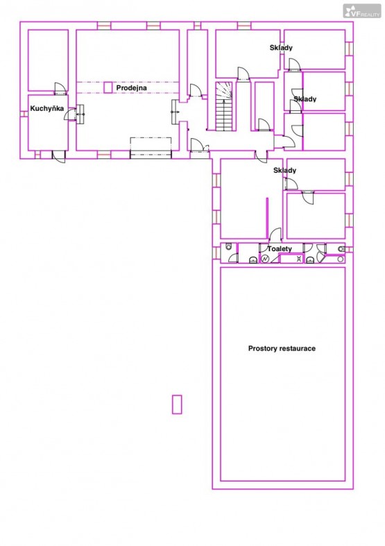
244 m2, cihlová
Popis: Nabízíme k pronájmu obchodní a skladovací prostory o výměře 244 m2 situované v přízemí zděného polyfunkčního domu. Prostory jsou vhodné pro provoz eshopu, prodejny se sklady, dílny a jiné alternativní využití. ...K dispozici samostatná kuchyňka, 2 x sociální zařízení WC, parkování ve dvoře. Prodejní část je po kompletní rekonstrukci (nová podlaha, protipožární dveře, vytápění, výmalba, plastová okna, vrata), skladovací prostory po částečné rekonstrukci (podlahy, protipožární dveře, výmalba), vhodné i pro skladování materiálů se zvýšenou náročností na požární bezpečnost (motorové oleje, aj. ). Objekt je situován v širším centru města při frekventované komunikaci Čáslavské v Chrudimi. Vytápění je řešeno centrálně dálkovým zdrojem z Opatovic. Prostory jsou již volné. Nájemné za tyto prostory jsou 16. 500 Kč + energie, které převedeme na nového nájemníka. Doporučuji prohlídku. MF
  • Vložení inzerátu:
    16.1.2020
  • Kód:
    00743
  • K dispozici od:
    0.0.0
  • Typ nemovitosti:
    Obchodní prostory
  • Typ budovy:
    Cihlová
  • Podlaží:
    1
  • Podlahová plocha:
    244 m2
  • Stav objektu:
    Dobrý
  • Energetická náročnost:
    G - Mimořádne nehospodárná
  • Nabídky v okolí:
  • Informace o obci:
    Obec Chrudim má 23240 obyvatel, z toho 16363 v produktivním věku.
    V obci se nachází pošta.
    V obci se nachází škola, popř. školka.
    V obci se nachází zdravotní zařízení.
    V obci je rozvod kanalizace.
    V obci je rozvod městské vody.
    V obci je rozvod plynu.

Podobné nabídky v okolí

Lokalita: Čáslavská 1, Chrudim, okres Chrudim, Česká republika Čáslavská 1, Chrudim