• Sledovat cenu
  •  

Zasílání upozornění emailem:

Pronájem obchodních prostor 200 m2 - Na Valtické, Břeclav

Cena: 20 000 Kč/měsíc
Stav:Volný
200 m2, montovaná
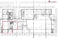
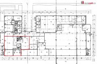
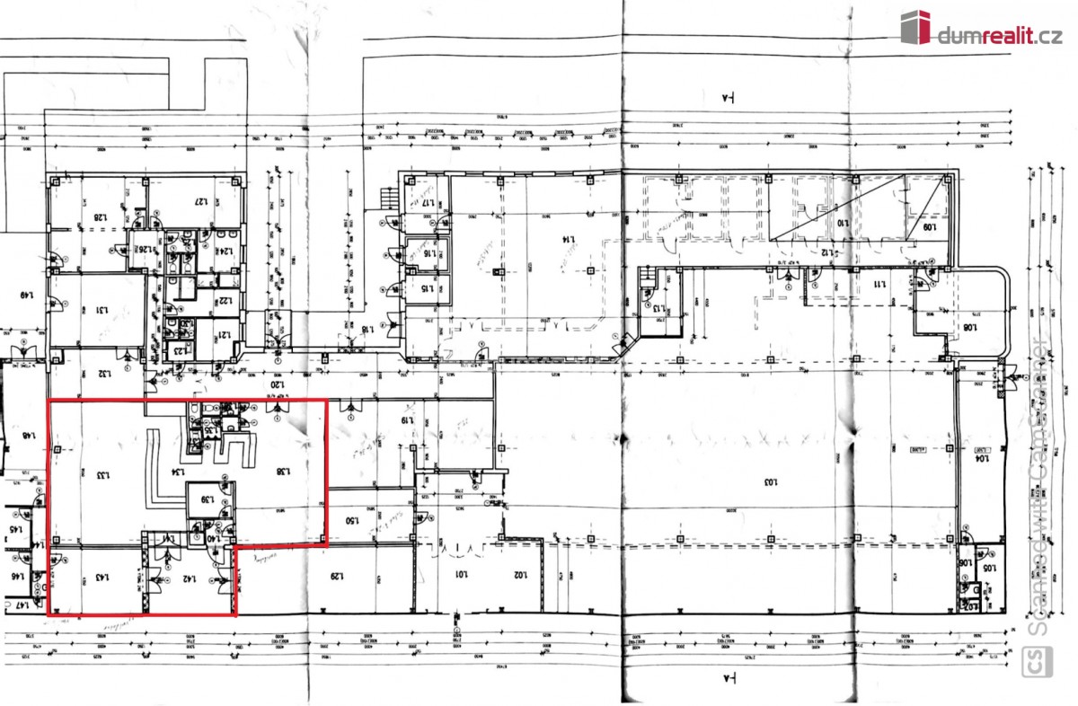
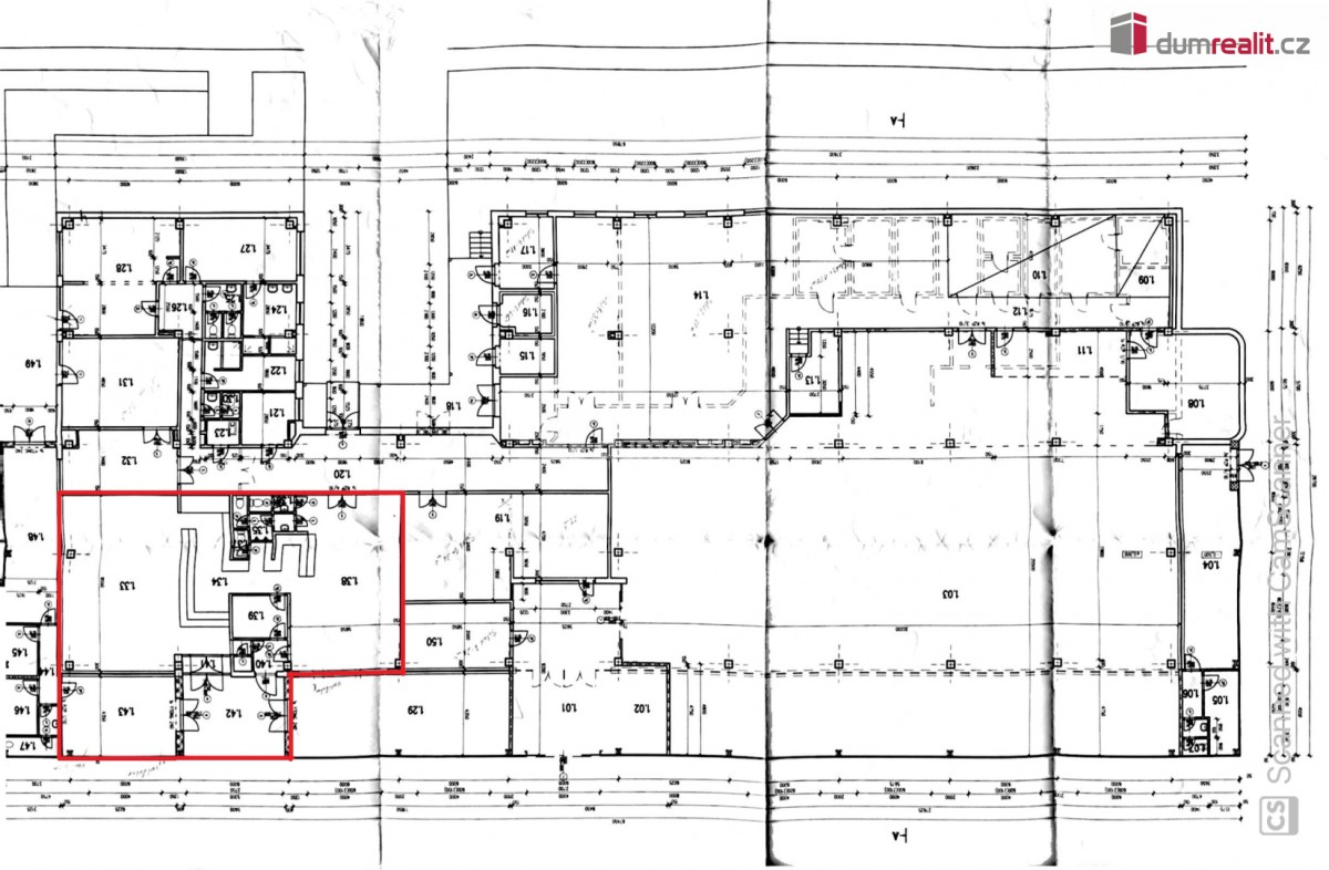
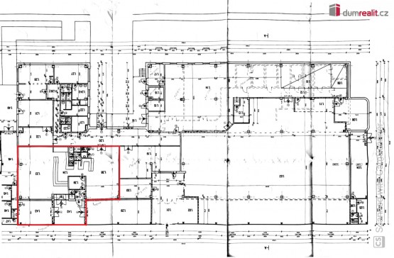
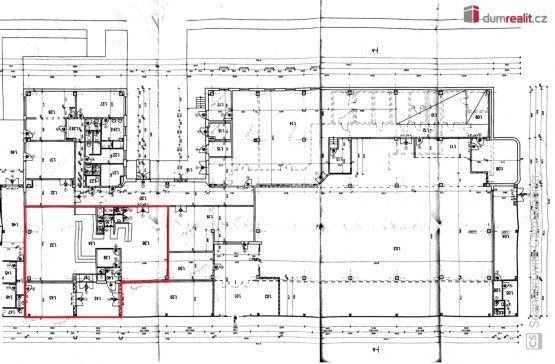
Popis: (+ zálohy na energie). Dumrealit. cz Vám nabízí pronájem komerčního prostoru 200m². Nabízený prostor se nachází v budově v centru sídliště Na Valtické, ale kousek od hlavní cesty. V prostoru je zabudována vzduchotechnika ...a klimatizace. Velkou výhodou je s neomezený přístup 24/7 a dostatek parkovacích míst pro zákazníky i nakládky či vykládky zboží. V případě potřeby je možné využít přístup z nákladní rampy. Prostor je možné si upravit, rozdělit, přizpůsobit dle svých představ a potřeb dle záměru podnikání. Přímo v prostoru se nachází 3 x sociální zařízení WC, sklad 6m². V případě potřeby je možné zbourat stávající příčky a vznikne tak jeden velký prostor. Prostor má vlastní podružný měřič elektřiny a vody. Nájemné činí 20. 000, - Kč měsíčně, zálohy na energie a služby 7. 000, - Kč. Při podpisu smlouvy bude požadována úhrada vratné kauce ve výši 54. 000, - Kč, nájemné, zálohy na energie a služby a provize RK 1měsíční nájemné +DPH. Prostor je volný, k okamžitému pronájmu. V případě dotazů či domluvení prohlídky kontaktujte makléře. Ev. číslo: 652581. Energetický štítek: G
  • Vložení inzerátu:
    24.9.2025
  • Kód:
    3991102
  • Typ nemovitosti:
    Obchodní prostory
  • Typ budovy:
    Montovaná
  • Podlahová plocha:
    200 m2
  • Stav objektu:
    Dobrý
  • Umístění objektu:
    Sídliště
  • Energetická náročnost:
    G - Mimořádne nehospodárná
  • Nabídky v okolí:
  • Informace o obci:
    Obec Břeclav má 24052 obyvatel, z toho 17278 v produktivním věku.
    V obci se nachází pošta.
    V obci se nachází škola, popř. školka.
    V obci se nachází zdravotní zařízení.
    V obci je rozvod kanalizace.
    V obci je rozvod městské vody.
    V obci je rozvod plynu.
Lokalita: Na Valtické , Břeclav, okres Břeclav, Česká republika Na Valtické, Břeclav

Kontakt

Petra Baťková


Podobné nabídky v okolí


Volná pracovní místa ExpertPrace.cz
  • Objednání prohlídky a více informací
  •  
  • Poslat na e-mail
  •  

Zasílání odkazu na realitu emailem: