Pronájem obchodních prostor 165 m2 - Mongolská, Poruba, Ostrava, okr. Ostrava-město (již není v nabídce)
Cena:
2 000 Kč/m2/rok
Stav:archiv
165 m2, skeletová
Popis:
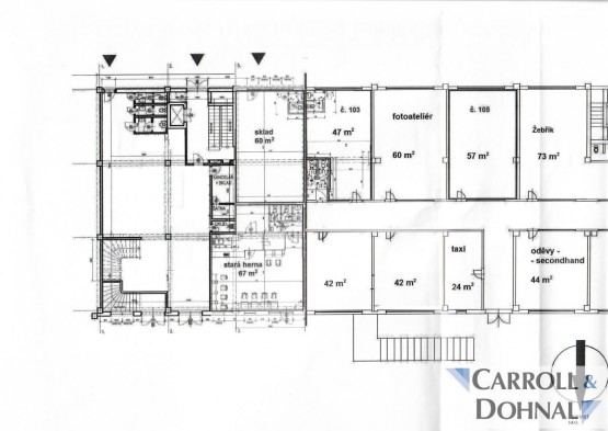
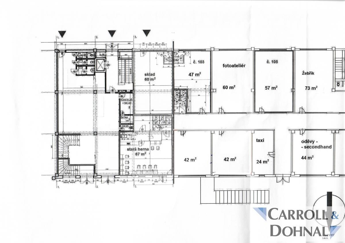
K pronájmu nabízíme prodejní prostory na ulici Mongolská v Ostravě Porubě. Prodejna je součástí komplexu Koruna, v němž jsou další prodejny a restaurace. Prodejna je na velice frekventovaném místě v těsné blízkosti nákupní...ho centra Albert. Je zde velké parkoviště, blízkost MHD. Objekt je uprostřed husté sídlištní zástavby. Vhodné jako prodejna, výdejna eshopu, vzorková prodejna aj. .
2000 Kč/m2/rok
- Vložení inzerátu:
22.10.2019
- Kód:
3034/1401
- Typ nemovitosti:
Obchodní prostory
- Typ budovy:
Skeletová
- Podlahová plocha:
165 m2
- Plocha parcely:
165 m2
- Stav objektu:
Po rekonstrukci
- Bezbariérový přístup:
Ano
- Nabídky v okolí: