• Sledovat cenu
  •  

Zasílání upozornění emailem:

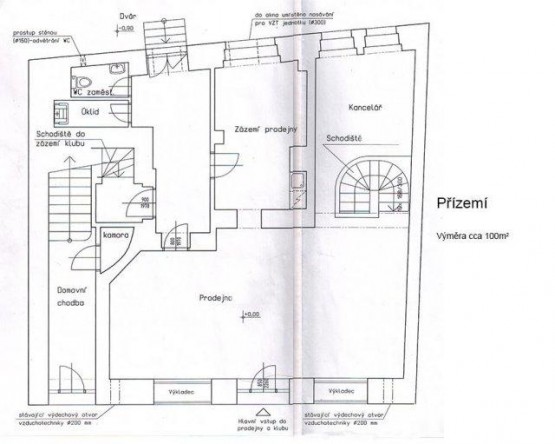
Pronájem obchodních prostor 160 m2 - Nádražní, Praha 5, Smíchov, Praha (již není v nabídce)

Cena: 70 000 Kč/měsíc
Stav:archiv
160 m2, cihlová
Popis: Nabízíme Vám k pronájmu obchodní prostor o celkové rozloze 160m2, které se nachází v přízemí cihlové budovy v ulici Nádražní, Praha 5, Smíchov. Celý prostor je před rekonstrukcí. Prostory se nachází ve dvou pa...trech, přízemí 100m2 a suterén 60m2. Úprava prostor na přání klienta je možná po dohodě s pronajímatelem. Dopravní dostupnost - prostory se nachází přímo u autobusového nádraží a na stanici metra Anděl, linka B. K dispozici od 1. 4. 2019.

Podobné nabídky v okolí

Lokalita: Nádražní , Praha 5, Smíchov, Praha, Česká republika Nádražní, Praha 5, Smíchov, Praha