Pronájem obchodních prostor 143 m2 - Štúrova, Praha 4, Praha (již není v nabídce)
Cena:
360 Kč/m2/měsíc
Stav:archiv
143 m2, skeletová
Popis:
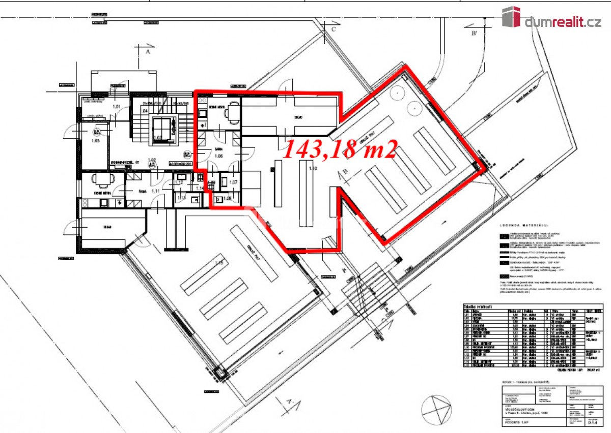
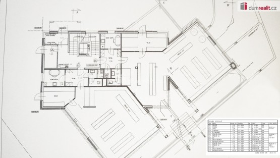
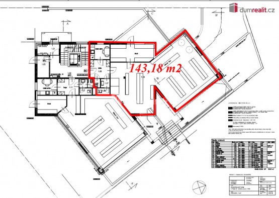
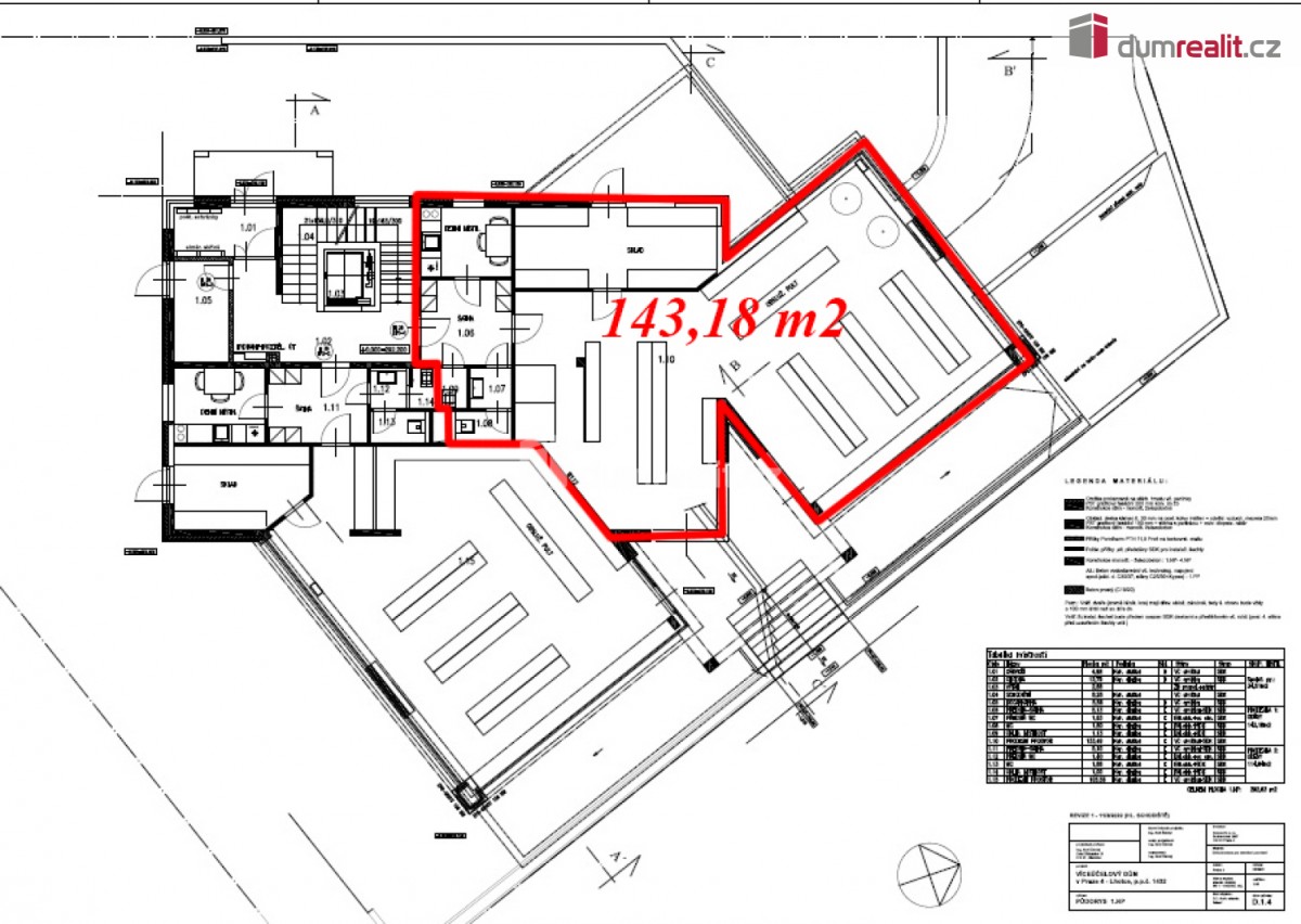
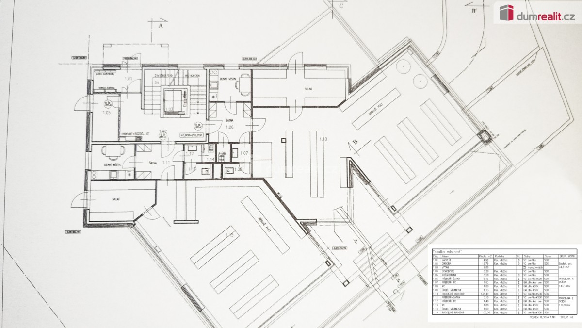
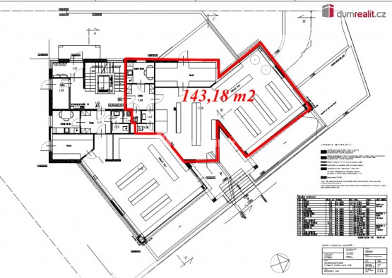
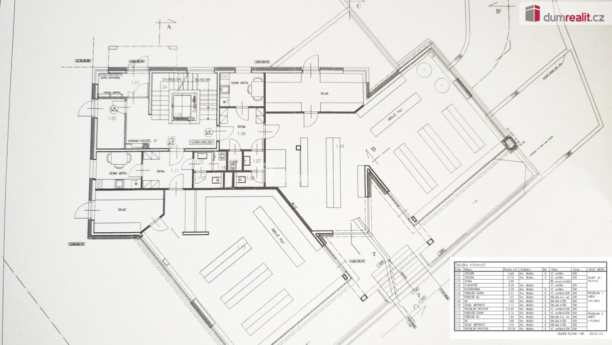
+ služby a elektroměr. Dumrealit. cz Vám nabízí exkluzivně pronájem zcela nového komerčního prostoru o velikosti 143, 18 m², v nově stavěné budově (PENB – B) přímo u budoucí stanice metra D - Nové Dvory (přes ulici Štúrov...a), která bude dokončena v druhé polovině roku 2026. Tento prostor se nachází v přízemí třípatrové nízkoenergetické budovy, kde v přízemí je nabízený prostor o velikosti 143, 18 m², který bude mít hlavní vstup z ulice Štúrova přímo od zastávky MHD / Bus – Tempo, vstup bude přes schodiště a také bude plně bezbariérový. Prostor 143, 18 m² může být jako obchodní (např. kavárna, prodejna, pekárna) nebo jako kancelář / showroom nebo i ordinace, výběr je plně na klientovi. Prostor lze plně modifikovat, lze ho rozšířit o další prostor nabízený k pronájmu o velikosti 114, 94 m² s vlastním zázemím a samostatným vstupem. K dispozici bude toaleta, šatna, předsíň a úklidová místnost. K prostoru lze dopronajmout venkovní terasu a menší zahrádku, dále parkovací stání a popř. sklepy. V domě bude 12 parkovací stání v suterénu domu, 6 x sklep a dále lze pronajmout až 3 venkovní parkovací stání. Aktuálně se v domě instalují okna, sdk příčky a klimatizace. Tato budova bude dokončena a zkolaudována v druhé polovině roku 2026, již nyní mohou probíhat prohlídky a úpravy prostor před dokončením přímo na přání nového nájemce. Velmi doporučuji všem zájemcům, kteří již nyní hledají atraktivní prostor u budoucí stanice metra D – Nové Dvory, v ulici Štúrova, Praha 4. Ev. číslo: 652665. Energetický štítek: B (60 kWh/m2/rok).
- Vložení inzerátu:
6.10.2025
- Kód:
3991798
- Typ nemovitosti:
Obchodní prostory
- Typ budovy:
Skeletová
- Zastavěná plocha:
258 m2
- Podlahová plocha:
143 m2
- Stav objektu:
Novostavba
- Energetická náročnost:
B - Velmi úsporná
- Ukazatel náročnosti:
60 kWh/m2
- Nabídky v okolí:
Lokalita:
Štúrova , Praha 4, Praha, Česká republika
Štúrova, Praha 4, Praha