• Sledovat cenu
  •  

Zasílání upozornění emailem:

Pronájem obchodních prostor 120 m2 - Bělohorská 210, Praha (již není v nabídce)

Cena: 325 Kč/m2/měsíc
Stav:archiv
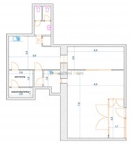
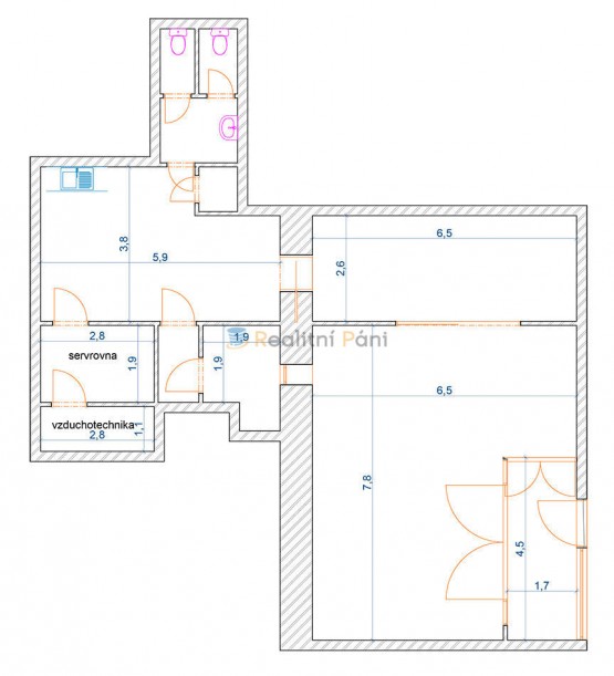
120 m2, parcela 340 m2
Popis: Nabízíme dlouhodobý pronájem obchodních prostor o velikosti 120 m² na frekventované adrese v ulici Bělohorská na pražském Břevnově. Jedná se o prostory bývalé banky které splňují vysoké standardy bezpečnosti a pohodlí - vz...duchotechnika s nezávislou výměnou vzduchu a klimatizace, trezorová místnost, serverovna, rozvody ethernetu, ocelové stahovací mříže, bezpečnostní skla a zámky. Vstup do prostoru pouze z uliční strany. Součástí je samostatný prostor pro umístění bankomatu s 24h přístupem.

Pronájem nabízíme s možností udělení generálního souhlasu s podnájmem části prostoru pro umístění bankomatu = úspora na nájemném. Po dobu úprav před zahájením provozu dále majitel nabízí významnou slevu na nájmu. Doba a výše sníženého nájmu bude individuálně nastavena adekvátně dle objemu přípravných prací.

Obchodní prostor se skládá z hlavní místnosti s předsálím, oddělené kanceláře, zázemí s kuchyňkou a sociálním zařízením a dále pak z technické a trezorové místnosti. Je vhodný zejména k provozu bankovních a finančních služeb, pojišťovnictví a dále provozů s vysokým nárokem na bezpečnost - prodejna zbraní, klenotů atd.

Obchodní prostor se nachází přímo u tramvajové zastávky U Kaštanu. Centrum města a vnitřní městský pražský okruh (tunel Blanka) pár minut autem. V bezprostředním okolí veškeré potřebné služby a občanská vybavenost. Do půl kilometru od obch. prostoru bydlí a žije cca 10. 000 obyvatel.

Měsíční zálohy na služby a energie činí cca 6. 000, - Kč (není zohledněna změna cen energií v čase). Elektřina se na zájemce přepisuje dle dohody s majitelem.

Vratná kauce je ve výši jednoho měsíčního nájmu a poplatků za služby, Pro další informace nebo domluvení prohlídky mne neváhejte kontaktovat.
  • Vložení inzerátu:
    7.12.2022
  • Kód:
    0214
  • K dispozici od:
    0.0.0
  • Typ nemovitosti:
    Obchodní prostory
  • Podlaží:
    1
  • Podlahová plocha:
    120 m2
  • Plocha parcely:
    340 m2
  • Stav objektu:
    Po rekonstrukci
  • Plyn:
    plynovod
  • Odpad:
    kanalizace
  • Energetická náročnost:
    G - Mimořádne nehospodárná
  • Podle vyhlášky:
    c. 148/2007 Sb
  • Nabídky v okolí:
  • Informace o obci:
    Obec Praha má 1257158 obyvatel, z toho 889974 v produktivním věku.
    V obci se nachází pošta.
    V obci se nachází škola, popř. školka.
    V obci se nachází zdravotní zařízení.
    V obci je rozvod kanalizace.
    V obci je rozvod městské vody.
    V obci je rozvod plynu.

Podobné nabídky v okolí

Lokalita: Bělohorská 210, Praha, Česká republika Bělohorská 210, Praha