• Sledovat cenu
  •  

Zasílání upozornění emailem:

Pronájem obchodních prostor 104 m2 - Orlí, Brno, okr. Brno-město (již není v nabídce)

Cena: 65 000 Kč/měsíc
Stav:archiv
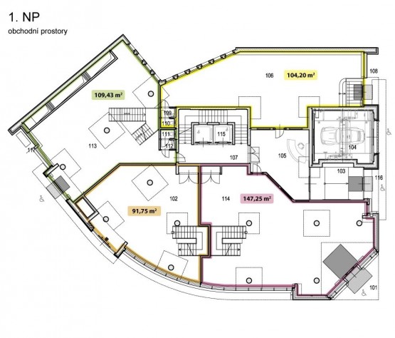
104 m2, montovaná
Popis: Pronájem obchodního prostoru o celkové rozloze 104m2.
Prostor je umístěn v 1NP (první nadzemní patro) budovy včetně výtahu. Jedná se o nadstandartní a lukrativní objekt s minimalizací energetických nákladů. Pro...story jsou klimatizovány, mají vlastní sociální zázemí. Využití obchodního prostoru je všestranné ( prodejna obuvi, textilu, galanterie, šperků a pod. )
Budova je umístěna na frekventované ulici s velice dobrou občanskou dostupností na Hlavní nádraží, k uzlu autobusové dálkové dopravy a MHD. Přístup do budovy je 24/7, ostraha je zajištěna kamerovým systémem. Parkování pro nájemníky ( parkovací stání v zakladači ) je zpoplatněno - není součástí nájmu.
Prostory jsou volné k okamžitému pronájmu.
Pro více informací kontaktujte makléře. Pokud jste si nevybrali z uveřejněné nabídky, zadejte nám prosím Vaši poptávku a my se pokusíme najít odpovídající nemovitost.
  • Vložení inzerátu:
    24.10.2022
  • Kód:
    BK541456
  • K dispozici od:
    0.0.0
  • Typ nemovitosti:
    Obchodní prostory
  • Typ budovy:
    Montovaná
  • Podlahová plocha:
    104 m2
  • Stav objektu:
    Velmi dobrý
  • Umístění objektu:
    Centrum
  • Voda:
    dálkový vodovod
  • Doprava:
    vlak, MHD, autobus
  • Odpad:
    kanalizace
  • Bezbariérový přístup:
    Ano
  • Energetická náročnost:
    G - Mimořádne nehospodárná
  • Nabídky v okolí:
  • Informace o obci:
    Obec Brno má 371371 obyvatel, z toho 256490 v produktivním věku.
    V obci se nachází pošta.
    V obci se nachází škola, popř. školka.
    V obci se nachází zdravotní zařízení.
    V obci je rozvod kanalizace.
    V obci je rozvod městské vody.
    V obci je rozvod plynu.

Podobné nabídky v okolí

Lokalita: Orlí , Brno, okres Brno-město, Česká republika Orlí, Brno, okr. Brno-město