Pronájem nebytových prostor 88 m2 - Masarykovo náměstí, Brandýs nad Labem-Stará Boleslav, okr. Praha-východ (již není v nabídce)
Cena:
26 500 Kč/měsíc
Stav:archiv
88 m2, montovaná
Popis:
Cena za služby dle provozu a pronajatého prostoru. . K pronájmu kancelář o velikosti cca 88 m² v Brandýs nad Labem - Praha východ.
- Možnost pronájmu i dalších prostor viz níže
- V každém skladovacím prostoru je přiv...edena elektřina 380/230V, voda, kanalizace, teplovodní sahary a příprava na vestavbu kanceláře.
- každá kancelář a prodejna má vlastní toalety
- výška vrat do skladu 4, 2 m
- cca 10 - 15 parkovacích míst v areálu, cena parkování je individuální dle pronajatých prostor
- možné zatížení ve skladech a na prodejně je 5t/ m²
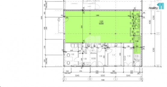
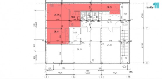
Dispozice:
- 1NP (první nadzemní patro) Sklad č. 1, 238, 2 m², výška stropu 6, 2 m
- 1NP (první nadzemní patro) Sklad č. 2, 236, 1 m², výška stropu 6, 2 m
- 1NP (první nadzemní patro) Sklad č. 3, 124, 6 m², výška stropu 6, 2 m
- 1NP (první nadzemní patro) Prodejna 95, 1 m², výška stropu 2, 7 m
- 1NP (první nadzemní patro) Kancelář č. 1, 21, 5 m², výška stropu 2, 7 m
- 2NP (druhé nadzemní patro) Kancelář č. 2, 88, 1 m², výška stropu 2, 7 m
- 2NP (druhé nadzemní patro) Kancelář č. 3, / Byt s vlastní koupelnou 47, 7 m², výška stropu 2, 6 m
K pronájmu koncem října, tak neváhejte a domluvte si prohlídku. Ev. číslo: 25782. Energetický štítek: A
- Vložení inzerátu:
13.10.2023
- Kód:
3692293
- Typ nemovitosti:
Kancelář
- Typ budovy:
Montovaná
- Podlahová plocha:
88 m2
- Stav objektu:
Novostavba
- Energetická náročnost:
A - Mimoˇrádne úsporná
- Nabídky v okolí: