• Sledovat cenu
  •  

Zasílání upozornění emailem:

Pronájem nebytových prostor 82 m2 - Hrušovská, Ostrava, okr. Ostrava-město (již není v nabídce)

Cena: 150 Kč/m2/měsíc
Stav:archiv
82 m2, panelová, parcela 1878 m2
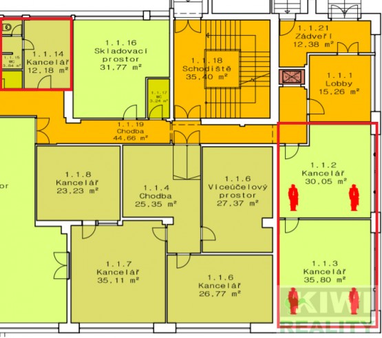
Popis: Nabízím kancelářské prostory v atraktivní lokalitě poblíž Komenského sadů. Jedná se o 2 místnosti rozdělenými SDK příčkou o velikosti 30 m2 a 36 m2. Součástí prostorů je samostatná kuchyňka s toaletou ...a sprchou přes chodbu. Ke kanceláři je možné si pronajmout i menší sklad s výměrou 32 m2 a parkovací místo za poplatek. Součástí prostor je společná serverovna. V případě dotazů se na mě neváhejte obrátit. Lukáš Bodický
  • Vložení inzerátu:
    19.7.2021
  • Kód:
    0315
  • K dispozici od:
    0.0.0
  • Typ nemovitosti:
    Kancelář
  • Typ budovy:
    Panelová
  • Podlaží:
    1
  • Zastavěná plocha:
    1878 m2
  • Podlahová plocha:
    82 m2
  • Plocha parcely:
    1878 m2
  • Stav objektu:
    Velmi dobrý
  • Voda:
    dálkový vodovod
  • Elektřina:
    230 V
  • Doprava:
    MHD
  • Odpad:
    kanalizace
  • Komunikace:
    asfaltová
  • Energetická náročnost:
    D - Méne úsporná
  • Podle vyhlášky:
    c. 148/2007 Sb
  • Nabídky v okolí:
  • Informace o obci:
    Obec Ostrava má 303609 obyvatel, z toho 212976 v produktivním věku.
    V obci se nachází pošta.
    V obci se nachází škola, popř. školka.
    V obci se nachází zdravotní zařízení.
    V obci je rozvod kanalizace.
    V obci je rozvod městské vody.
    V obci je rozvod plynu.

Podobné nabídky v okolí

Lokalita: Hrušovská , Ostrava, okres Ostrava-město, Česká republika Hrušovská, Ostrava, okr. Ostrava-město