• Sledovat cenu
  •  

Zasílání upozornění emailem:

Pronájem nebytových prostor 79 m2 - Bělohorská, Praha 6, Břevnov, Praha (již není v nabídce)

Cena: 270 Kč/m2/měsíc
Stav:archiv
79 m2, cihlová
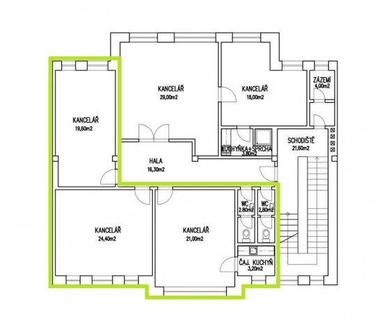
Popis: Nabízíme k pronájmu hezké kanceláře o velikosti 79, 69 m2. Nachází se v 1 patře, v ulici Bělohorská, Praha 6. Kancelář zahrnuje:
- Kancelář (21, 00 m2)
- Kancelář (24, 40 m2)
- Kanc...elář (19, 60 m2)
- sociální zařízení WC (2, 80 m2)
- Čajová kuchyňka (3, 20 m2)
- Sdílená hala (9, 69 m2)
Tramvajová zastávka Drinopol přímo před budovou.
Možnost parkování hned za domem.

Podobné nabídky v okolí

Lokalita: Bělohorská , Praha 6, Břevnov, Praha, Česká republika Bělohorská, Praha 6, Břevnov, Praha