• Sledovat cenu
  •  

Zasílání upozornění emailem:

Pronájem nebytových prostor 773 m2 - Českomoravská 2408, Praha 9, Praha

Cena: 280 599 Kč/měsíc
Stav:Volný
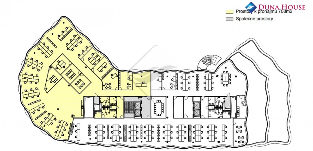
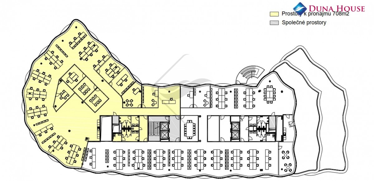
773 m2, skeletová
Popis: Rádi bychom vám nabídli administrativní kancelářské prostory v moderní budově Balabenka Office Building .

Budova je situována na Praze 9 v ulici Českomoravská, v oblasti, která je propojena s bytovými a nákupními komplex...y.

Kancelářské prostory o rozloze 773 m2 se nacházejí v 5. NP (páté nadzemní patro).
Možnost přizpůsobení dispozice podle požadavků nových nájemců je samozřejmostí.

K dispozici je kantýna, kolárna se sprchou pro sportovce, kuřárna, terasy i zahrada.
Budova nabízí nadstandardní množství parkovacích míst včetně nabíjecích elektro stanic.
Cena parkování je 160 EUR/měsíc za parkovací místo. K dispozici je 8 parkovacích míst.
Díky své poloze je budova velice dobře dostupná a veškeré potřebné služby jsou v přilehlém okolí.
Park zajišťuje příjemné místo k odpočinku.
Budova je dobře dostupná jak autem, tak i veřejnou dopravou. V blízkosti se nachází tramvajová zastávka Balabenka, stanice metra B - Palmovka nebo Českomoravská.

Kontribuce majitele na dokončení dle vlastních požadavků je 200 EUR/m2.

PENB budovy nyní není k dispozici, proto je uvedena třída G.
Pro více informací kontaktujte makléře.
Lokalita: Českomoravská 2408, Praha 9, Praha, Česká republika Českomoravská 2408, Praha 9, Praha

Kontakt

Kateřina Lepšová


Podobné nabídky v okolí


Volná pracovní místa ExpertPrace.cz
  • Objednání prohlídky a více informací
  •  
  • Poslat na e-mail
  •  

Zasílání odkazu na realitu emailem: